スカイプラザ赤坂 606号室|東京都港区
物件の価値を磨き上げた
リノベーション住宅
リノベーション住宅
スカイプラザ赤坂 606号室
価格18,890万円
月額ローンのシミュレーション
自宅からバーチャル内覧会を開催中です。
オンラインで物件をご案内します。
オンラインで物件をご案内します。
お電話での問い合わせ(10:00-19:00)
物件概要
リノベーション内容
- 構造鉄筋コンクリート造地下1階地上5階建5階部分
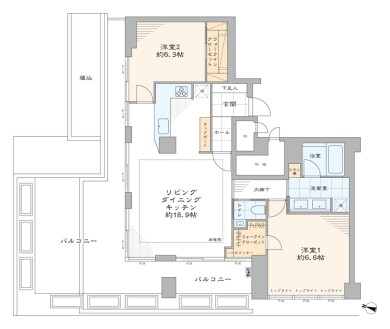
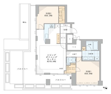
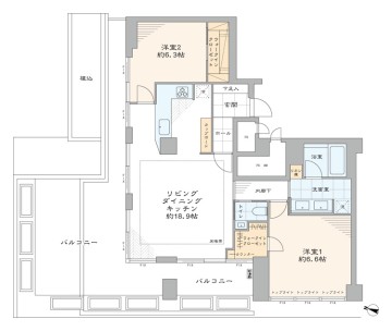
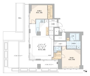
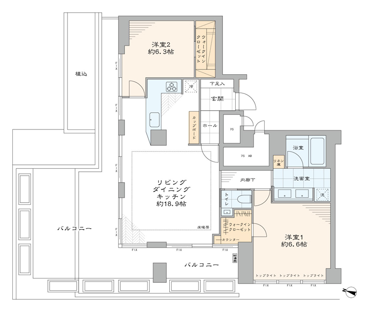
- 間取り2LDK+2WIC
- 専有面積79.08㎡(壁芯)
- バルコニー面積36.60 ㎡
- 築年月1978 (昭和53)年11月
- 総戸数75戸
- 土地権利所有権
- 用途地域第一種中高層住居専用地域
- 現況空室
- 引渡日即可
- 駐車場空無(30,000円/月)
- ペット飼育可(規約有)
- 事務所使用不可
- 管理費12,880円/月
- 修繕積立金19,700円/月
- 管理形態全部委託管理(住込)
- 管理会社㈱合人社計画研究所
- 施工会社㈱福田組(総合監理:鹿島建設㈱)
- 旧分譲会社㈱福田組
- 設備都市ガス・公営水道・本下水・EV・夜間オートロック・宅配ボックス
- 備考駐輪場:空無(500円/月) ・ バイク置場:無
インターネット(NTT・KDDI) ・ CATV(J:COM港・新宿)
地下1階にトランクルーム有(所有権・使用料無償)
修繕積立金総額:76,308,327円(2025年10月現在)
固定資産税・都市計画税:248,366円(2025年度概算)
トランクルーム面積 : 4.68m²
そ の 他 : 2,681円/月(水道料金基本料) - 修繕履歴2025年 8月 エレベーターリニューアル工事
2024年11月 エントランス改修工事
2023年10月 大規模修繕工事
- フローリング新規貼替
- 壁・天井クロス新規貼替
- 給水管・給湯管新規交換(専有部)
- 建具・玄関収納等新規交換
- オリジナル洗面化粧台新規交換
- LIXIL製洗浄便座付トイレ新規交換
- LIXIL製ユニットバス新規交換(浴室換気乾燥機付)
- オリジナルシステムキッチン新規交換(食器洗い機付)
- 照明器具新規設置
- エアコン3基新規設置
- 床暖房マット新規設置(LD)…等
Google Maps Loading...
- 所在地 : 東京都港区赤坂8-6-27
- 交通 : 東京メトロ銀座線・東京メトロ半蔵門線・都営大江戸線『青山一丁目』駅徒歩5分
東京メトロ千代田線『乃木坂』駅徒歩8分
自宅からバーチャル内覧会を開催中です。
オンラインで物件をご案内します。
オンラインで物件をご案内します。
お電話での問い合わせ(10:00-19:00)






































