パークシティ浜田山D棟 508号室|東京都杉並区
物件の価値を磨き上げた
リノベーション住宅
リノベーション住宅
パークシティ浜田山D棟 508号室
価格39,990万円
月額ローンのシミュレーション
自宅からバーチャル内覧会を開催中です。
オンラインで物件をご案内します。
オンラインで物件をご案内します。
お電話での問い合わせ(10:00-19:00)
物件概要
リノベーション内容
- 構造鉄筋コンクリート造地下1階地上6階建5階部分
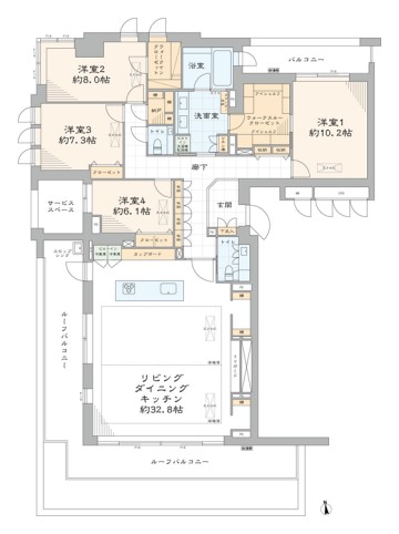
- 間取り4LDK+WTC・WIC
- 専有面積165.25㎡(壁芯)
- バルコニー面積8.70 ㎡
- 築年月2009(平成21)年10月
- 総戸数108戸
- 土地権利所有権
- 用途地域第一種中高層住居専用地域
- 現況空室
- 引渡日即可
- 駐車場空有(24,000円~32,000円/月)
- ペット飼育可(小型犬・猫・小鳥・小動物は合わせて2匹まで 1階部分は中型・大型犬飼育可能、細則有)
- 事務所使用不可
- 管理費69,730円/月
- 修繕積立金36,190円/月
- 管理形態全部委託管理(日勤)
- 管理会社三井不動産レジデンシャルサービス
- 施工会社鹿島建設
- 旧分譲会社三井不動産レジデンシャル
- 設備都市ガス・公営水道・本下水・EV・オートロック・宅配ボックス
- 備考駐輪場:空有(300円/月) ・ バイク置場:空有(3,000円/月)
インターネット(NTT・KDDI・つなぐネットコミュニケーションズ・ジェイコム)
CATV(J:COM)
トランクルーム:空無(2,380円~9,800円/月)
修繕積立金総額:769,128,614円(2025年1月現在)
固定資産税・都市計画税:598,765円(2025年度概算) - 修繕履歴2025年 駐車場シャッター更新
2023年 ディスポーザー整備
- フローリング新規貼替
- 壁・天井クロス新規貼替
- 給水管・給湯管新規交換(専有部)
- 建具・玄関収納等新規交換
- 田中工藝製洗面化粧台新規交換
- TOTO製洗浄便座付トイレ新規交換
- 田中工藝製トイレ手洗い器新規交換
- 東京バススタイル製ユニットバス新規交換(浴室換気乾燥機付)
- 田中工藝製システムキッチン新規交換(食器洗い機付)
- 照明器具新規設置
- エアコン全室新規設置
- 床暖房マット新規設置
- 給湯器2台新規交換(追焚式)…等
Google Maps Loading...
- 所在地 : 東京都杉並区高井戸東1-31-5
- 交通 : 京王井の頭線『浜田山』駅徒歩6分
自宅からバーチャル内覧会を開催中です。
オンラインで物件をご案内します。
オンラインで物件をご案内します。
お電話での問い合わせ(10:00-19:00)








































