パルシオ五番町 501号室|東京都千代田区
物件の価値を磨き上げた
リノベーション住宅
リノベーション住宅
パルシオ五番町 501号室
オープンルーム
価格19,990万円
月額ローンのシミュレーション
- 歴史と利便性が息づく、千代田区五番町
- フロントサービス有
- 収納豊富なWIC付・LDKに床暖房
- 所在地 : 東京都千代田区五番町10
- 交通 : JR総武緩行線・東京メトロ有楽町線・東京メトロ南北線・都営新宿線『市ヶ谷』駅徒歩3分
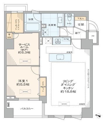
東京メトロ有楽町線『麹町』駅徒歩5分 - 間取り : 1SLDK+WIC
- 専有面積 : 65.75 ㎡
当物件を
スマホで
チェック!!
- 2駅利用可能
- CATV導入済み
- TVモニター付インターフォン
- オートロック
- トイレ新規交換
- ペット飼育可
- 光ファイバー導入済
(共用部まで) - 公園至近
- 宅配ボックス
- 床暖房
- 浴室換気乾燥機
- 買物便利
- 食器洗い機
- 駅近
- 駐車場
- 駐輪場
オープンルーム
開催中
開催中
【開催日時】11/8(土)、11/9(日)10:00~18:00 ※予約可能枠として11:00~、13:00~、15:00~、17:00~がございます。
ご希望の方は、ビデオ通話での内見が可能です。
自宅からバーチャル内覧会を開催中です。
オンラインで物件をご案内します。
オンラインで物件をご案内します。
お電話での問い合わせ(10:00-19:00)
物件概要
リノベーション内容
- 構造鉄骨鉄筋コンクリート造鉄筋コンクリート造地下2階地上14階建5階部分
- 間取り1SLDK+WIC
- 専有面積65.75㎡(壁芯)
- バルコニー面積5.27 ㎡
- 築年月2003年(平成15年)年10月
- 総戸数69戸
- 土地権利所有権
- 用途地域第一種住居地域・第二種住居地域
- 現況空室
- 引渡日即可
- 駐車場空有(31,900円~44,000円/月)
- ペット飼育可(規約有)
- 事務所使用不可
- 管理費20,600円/月
- 修繕積立金28,020円/月
- 管理形態全部委託管理(巡回)
- 管理会社ライフポート西洋
- 施工会社大林組
- 旧分譲会社ユニホー
- 設備都市ガス・公営水道・本下水・EV・オートロック・宅配ボックス
- 備考駐輪場:空有(200円~300円/月) ・ バイク置場:無
インターネット(NTT・KDDI)
CATV(東京ケーブルネットワーク)
修繕積立金総額:147,185,000円(2024年8月現在)
固定資産税・都市計画税:231,799円(2025年度概算) - 修繕履歴
- フローリング新規貼替
- 給水管・給湯管新規交換(専有部)
- 建具・玄関収納等新規交換
- 田中工藝製洗面化粧台新規交換
- TOTO製洗浄便座付トイレ新規交換
- LIXIL製ユニットバス新規交換(浴室換気乾燥機付)
- 田中工藝製システムキッチン新規交換(食器洗い機付)
- 壁・天井クロス新規貼替
- 照明器具新規設置
- エアコン3基新規設置
- 床暖房マット新規設置(LDK)
- 給湯器新規交換(追焚式)…等
Google Maps Loading...
- 所在地 : 東京都千代田区五番町10
- 交通 : JR総武緩行線・東京メトロ有楽町線・東京メトロ南北線・都営新宿線『市ヶ谷』駅徒歩3分
東京メトロ有楽町線『麹町』駅徒歩5分
自宅からバーチャル内覧会を開催中です。
オンラインで物件をご案内します。
オンラインで物件をご案内します。
お電話での問い合わせ(10:00-19:00)










































