ヴェーゼント赤坂新坂 205号室|東京都港区
物件の価値を磨き上げた
リノベーション住宅
リノベーション住宅
ヴェーゼント赤坂新坂 205号室
価格39,990万円
月額ローンのシミュレーション
- —港区赤坂8丁目— 青山一丁目駅より平坦な立地
- 『青山一丁目』駅徒歩3分 / 『乃木坂』駅徒歩9 分
- 重厚な外観(2丁掛タイルと御影石)
- 所在地 : 東京都港区赤坂8-1-9
- 交通 : 東京メトロ銀座線・東京メトロ半蔵門線・都営大江戸線『青山一丁目』駅徒歩3分
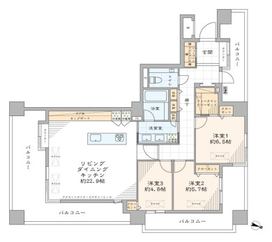
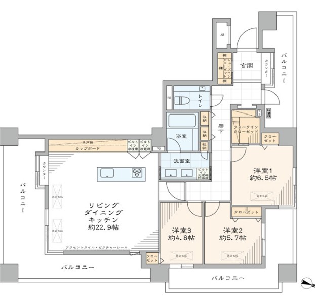
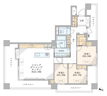
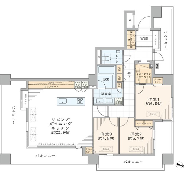
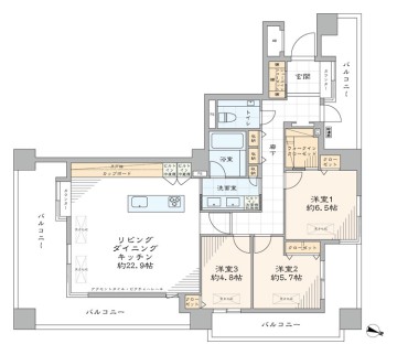
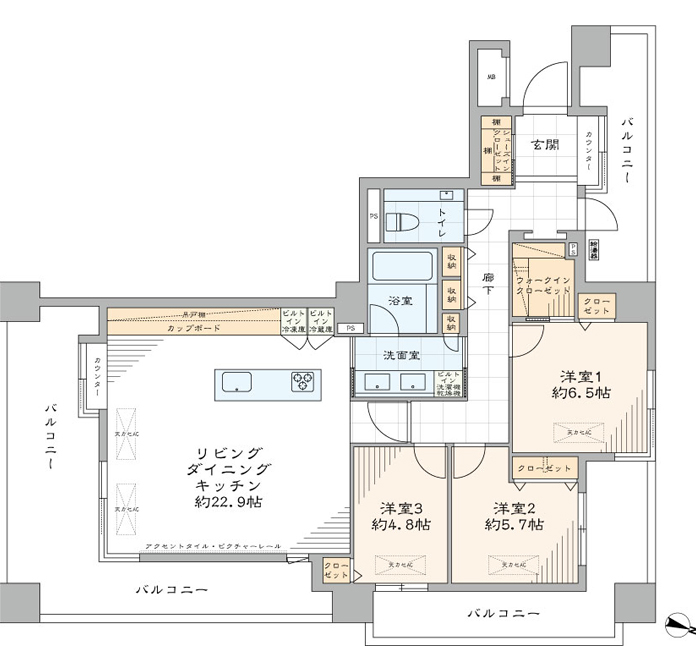
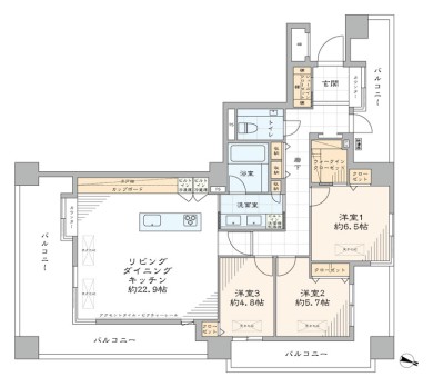
東京メトロ千代田線『乃木坂』駅徒歩9分 - 間取り : 3LDK+WIC・SIC
- 専有面積 : 99.51 ㎡
当物件を
スマホで
チェック!!
- 2駅利用可能
- CATV導入済み
- オートロック
- トイレ新規交換
- トランクルーム
- ペット飼育可
- 両面バルコニー
- 光ファイバー導入済
(共用部まで) - 公園至近
- 外観タイル貼
- 宅配ボックス
- 床暖房
- 浴室換気乾燥機
- 食器洗い機
- 駅近
- 駐車場
- 駐輪場
自宅からバーチャル内覧会を開催中です。
オンラインで物件をご案内します。
オンラインで物件をご案内します。
お電話での問い合わせ(10:00-19:00)
物件概要
リノベーション内容
- 構造鉄筋コンクリート造地下1階地上8階建2階部分
- 間取り3LDK+WIC・SIC
- 専有面積99.51㎡(壁芯)
- バルコニー面積46.37 ㎡
- 築年月2001(平成13)年3月
- 総戸数30戸
- 土地権利所有権
- 用途地域第二種住居地域
- 現況空室
- 引渡日即可
- 駐車場空有(38,000円~45,000円/月)
- ペット飼育可(規約有)
- 事務所使用不可
- 管理費32,840円/月
- 修繕積立金30,650円/月
- 管理形態全部委託管理(日勤)
- 管理会社エム・エフ・リビングサポート㈱
- 施工会社前田建設㈱
- 旧分譲会社三井物産㈱
- 設備都市ガス・公営水道・本下水・EV・宅配ボックス・オートロック
- 備考駐輪場:空有(250円/月) ・ バイク置場:無
インターネット(NTTフレッツ)・CATV(J:COM東京)
トランクルーム専用使用権付(無償)
修繕積立金総額:158,255,460円(2025年1月現在)
固定資産税・都市計画税:382,331円(2024年度概算) - 修繕履歴2021年3月 インターフォン設備更新
2013年9月 大規模修繕工事
- フローリング新規貼替
- 壁・天井クロス新規貼替
- 給水管・給湯管新規交換(専有部)
- 建具・玄関収納等新規交換
- 田中工藝製洗面化粧台新規交換
- TOTO製洗浄便座付トイレ新規交換
- LIXIL製ユニットバス新規交換(浴室換気乾燥機付)
- 田中工藝製システムキッチン新規交換(食器洗い機付)
- 照明器具新規設置
- エアコン5基新規設置
- 床暖房マット新規設置(LD)
- 給湯器新規交換(追焚式)…等
Google Maps Loading...
- 所在地 : 東京都港区赤坂8-1-9
- 交通 : 東京メトロ銀座線・東京メトロ半蔵門線・都営大江戸線『青山一丁目』駅徒歩3分
東京メトロ千代田線『乃木坂』駅徒歩9分
自宅からバーチャル内覧会を開催中です。
オンラインで物件をご案内します。
オンラインで物件をご案内します。
お電話での問い合わせ(10:00-19:00)











































