ガレリアコルテ六番町 503号室|東京都千代田区
物件の価値を磨き上げた
リノベーション住宅
リノベーション住宅
ガレリアコルテ六番町 503号室
オープンルーム
価格26,980万円
月額ローンのシミュレーション
- 5路線3駅利用可能 / 千代田区六番町アドレス
- ユナイテッドアローズ社監修リノベーション
- 専有面積80m²超の3LDK
- 所在地 : 東京都千代田区六番町7-9
- 交通 : JR中央・総武線・東京メトロ丸ノ内線他『四ツ谷』駅徒歩4分
JR総武線・東京メトロ有楽町線他『市ヶ谷』駅徒歩7分
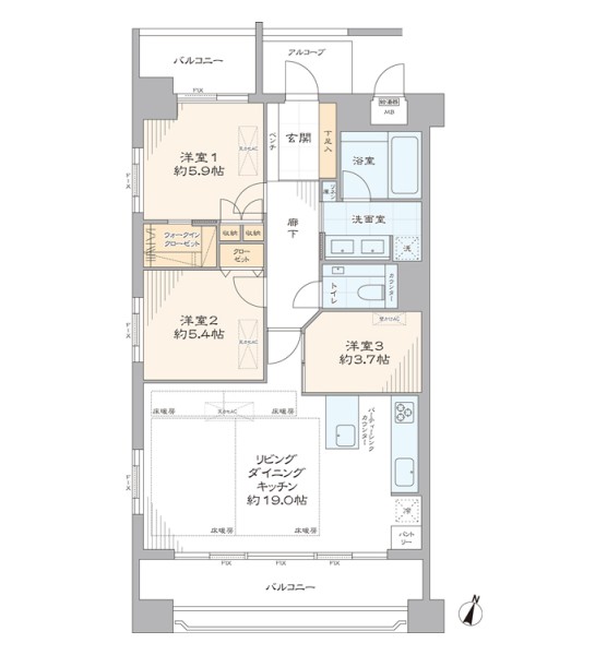
東京メトロ有楽町線『麴町』駅徒歩9分 - 間取り : 3LDK+WIC
- 専有面積 : 81.36 ㎡
当物件を
スマホで
チェック!!
- 2駅利用可能
- CATV導入済み
- オートロック
- ペット飼育可
- 両面バルコニー
- 光ファイバー導入済
(共用部まで) - 公園至近
- 宅配ボックス
- 浴室換気乾燥機
- 食器洗い機
- 駐車場
オープンルーム
開催中
開催中
【開催日時】1/24(土)、1/25(日)10:00~18:00 ※予約可能枠として11:00~、13:00~、15:00~、17:00~がございます。
ご希望の方は、ビデオ通話での内見が可能です。
自宅からバーチャル内覧会を開催中です。
オンラインで物件をご案内します。
オンラインで物件をご案内します。
お電話での問い合わせ(10:00-19:00)
物件概要
リノベーション内容
- 構造鉄骨鉄筋コンクリート造地上8階建5階部分
- 間取り3LDK+WIC
- 専有面積81.36㎡(壁芯)
- バルコニー面積17.46 ㎡
- 築年月2001(平成13)年2月
- 総戸数33戸
- 土地権利所有権
- 用途地域第一種住居地域
- 現況空室
- 引渡日即可
- 駐車場空有(30,800円~44,000円/月)
- ペット飼育可(飼育細則有)
- 事務所使用不可
- 管理費23,688円/月
- 修繕積立金26,849円/月
- 管理形態全部委託管理(日勤)
- 管理会社ファシリティパートナーズ㈱
- 施工会社㈱熊谷組
- 旧分譲会社㈱プロパスト
- 設備都市ガス・公営水道・本下水・EV・オートロック・宅配ボックス
- 備考バイク置場:空無(1,000円/月)
インターネット(NTT・KDDI)
CATV(東京ケーブルネットワーク㈱)
修繕積立金総額:25,348,621円(2025年3月現在)
固定資産税・都市計画税:277,386円(2025年度概算) - 修繕履歴2023年9月 大規模修繕工事
- フローリング新規貼替
- 建具・玄関収納等新規交換
- オリジナル洗面化粧台新規交換
- LIXIL製洗浄便座付トイレ新規交換
- LIXIL製ユニットバス新規交換(浴室換気乾燥機付)
- オリジナルシステムキッチン新規交換(食器洗い機付)
- 壁・天井クロス新規貼替
- 照明器具新規設置
- エアコン四基新規設置
- 床暖房マット新規交換(LD)
- 給湯器新規交換(追焚式)…等
Google Maps Loading...
- 所在地 : 東京都千代田区六番町7-9
- 交通 : JR中央・総武線・東京メトロ丸ノ内線他『四ツ谷』駅徒歩4分
JR総武線・東京メトロ有楽町線他『市ヶ谷』駅徒歩7分
東京メトロ有楽町線『麴町』駅徒歩9分
自宅からバーチャル内覧会を開催中です。
オンラインで物件をご案内します。
オンラインで物件をご案内します。
お電話での問い合わせ(10:00-19:00)











































