芝浦アイランドケープタワー4612 号室|東京都港区
物件の価値を磨き上げた
リノベーション住宅
リノベーション住宅
芝浦アイランドケープタワー4612 号室
オープンルーム
価格25,990万円
月額ローンのシミュレーション
- 南西角部屋・富士山・東京タワー等を望む眺望
- 総戸数1095戸・48階建のタワーレジデンス
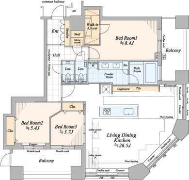
- 専有面積104m² 収納豊富な3LDK
- 所在地 : 東京都港区芝浦4-19-1
- 交通 : JR山手線・JR京浜東北線『田町』駅徒歩12分
都営三田線『三田』駅徒歩15分
ゆりかもめ『芝浦ふ頭』駅徒歩15分 - 間取り : 3LDK+WIC
- 専有面積 : 104.60 ㎡
当物件を
スマホで
チェック!!
- 24時間有人管理
- 2駅利用可能
- CATV導入済み
- オートロック
- トイレ新規交換
- ペット飼育可
- 両面バルコニー
- 光ファイバー導入済
(共用部まで) - 公園至近
- 宅配ボックス
- 床暖房
- 浴室換気乾燥機
- 眺望良好
- 角部屋
- 食器洗い機
- 駐車場
- 駐輪場
オープンルーム
開催中
開催中
【開催日時】4/18(土)、4/19(日)10:00~18:00 ※予約可能枠として11:00~、13:00~、15:00~、17:00~がございます。
ご希望の方は、ビデオ通話での内見が可能です。
自宅からバーチャル内覧会を開催中です。
オンラインで物件をご案内します。
オンラインで物件をご案内します。
お電話での問い合わせ(10:00-19:00)
物件概要
リノベーション内容
- 構造鉄筋コンクリート造地下1階地上48階建46階部分
- 間取り3LDK+WIC
- 専有面積104.60㎡(壁芯)
- バルコニー面積15.26 ㎡
- 築年月2006(平成18)年10月
- 総戸数1095戸
- 土地権利所有権
- 用途地域第二種住居地域
- 現況空室
- 引渡日即可
- 駐車場空有(24,000~38,000円/月)
- ペット飼育可(飼育使用細則有)
- 事務所使用不可
- 管理費25,420円/月
- 修繕積立金25,420円/月
- 管理形態全部委託管理(日勤)
- 管理会社三井不動産レジデンシャルサービス㈱
- 施工会社鹿島建設㈱
- 旧分譲会社三井不動産㈱・他
- 設備都市ガス・公営水道・本下水・EV・オートロック・宅配ボックス
- 備考駐輪場:空有(100円~800円/月)
バイク置場:空有(3,000円~6,000円/月)
インターネット(NTT・KDDI・つなぐネット・U-NEXT・ソニーネット等)
CATV(ジェイコム)
修繕積立金総額:2,610,544,365円(2024年12月現在)
固定資産税・都市計画税:273,700円(2025年度概算) - 修繕履歴2023年 大規模修繕工事実施
2022年 非常用発電設備修理工事
- フローリング新規貼替
- 建具・玄関収納等新規交換
- 田中工藝製洗面化粧台新規交換
- TOTO製洗浄便座付トイレ新規交換(2台)
- LIXIL製ユニットバス新規交換(浴室換気乾燥機付)
- 田中工藝製システムキッチン新規交換(食器洗い機付)
- 給湯器新規交換(追焚式)
- 田中工藝製トイレ手洗い新規交換
- 壁・天井クロス新規貼替
- 照明器具新規設置
- 床暖房マット新規交換
- TOTO製トイレ手洗い新規交換…等
Google Maps Loading...
- 所在地 : 東京都港区芝浦4-19-1
- 交通 : JR山手線・JR京浜東北線『田町』駅徒歩12分
都営三田線『三田』駅徒歩15分
ゆりかもめ『芝浦ふ頭』駅徒歩15分
自宅からバーチャル内覧会を開催中です。
オンラインで物件をご案内します。
オンラインで物件をご案内します。
お電話での問い合わせ(10:00-19:00)










































