グランシティ中目黒 602号室|東京都目黒区
物件の価値を磨き上げた
リノベーション住宅
リノベーション住宅
グランシティ中目黒 602号室
価格16,980万円
月額ローンのシミュレーション
自宅からバーチャル内覧会を開催中です。
オンラインで物件をご案内します。
オンラインで物件をご案内します。
お電話での問い合わせ(10:00-19:00)
物件概要
リノベーション内容
- 構造鉄筋コンクリート造地上6階建6階部分
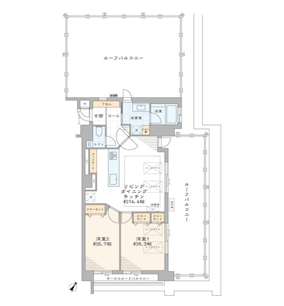
- 間取り2LDK
- 専有面積61.94㎡(壁芯)
- バルコニー面積64.29(ルーフバルコニー) ㎡
- 築年月1999(平成11)年10月
- 総戸数27戸
- 土地権利所有権
- 用途地域第一種中高層住居専用地域
- 現況空室
- 引渡日即可
- 駐車場空有(33,000円~35,000円/月)
- ペット飼育可(規約有)
- 事務所使用不可
- 管理費11,800円/月
- 修繕積立金24,470円/月
- 管理形態全部委託管理(巡回)
- 管理会社大成有楽不動産㈱
- 施工会社大成建設㈱
- 旧分譲会社日本綜合地所㈱
- 設備都市ガス・公営水道・本下水・EV・オートロック・宅配ボックス
- 備考駐輪場:空有(100円~200円/月)
バイク置場:空有(500円/月)
インターネット(NTT・KDDI・アルテリアネットワーク)
CATV(イッツ・コミュニケーションズ)
修繕積立金総額:66,177,833円(2024年10月現在)
固定資産税・都市計画税:127,896円(2025年度概算)
ルーフバルコニー面積 : 64.29m²
そ の 他 : 3,100円/月(ルーフバルコニー使用料) - 修繕履歴2025年5月 給水ポンプユニットオーバーホール
2021年4月 宅配BOX交換工事
2020年5月 インターホン更新工事
- フローリング新規貼替
- 壁・天井クロス新規貼替
- 給水管・給湯管新規交換(専有部)
- 建具・玄関収納等新規交換
- オリジナル洗面化粧台新規交換
- LIXIL製洗浄便座付トイレ新規交換
- LIXIL製ユニットバス新規交換(浴室換気乾燥機付)
- オリジナルシステムキッチン新規交換(食器洗い機付)
- 照明器具新規設置
- エアコン1基新規設置
- 床暖房マット新規設置(LD)
- 給湯器新規交換(追焚式)…等
Google Maps Loading...
- 所在地 : 東京都目黒区中目黒1-1-41
- 交通 : 東急東横線『中目黒』駅徒歩8分
東急東横線『代官山』駅徒歩10分
JR山手線『恵比寿』駅徒歩11分
自宅からバーチャル内覧会を開催中です。
オンラインで物件をご案内します。
オンラインで物件をご案内します。
お電話での問い合わせ(10:00-19:00)











































