コートヤード祐天寺 501号室|東京都目黒区
物件の価値を磨き上げた
リノベーション住宅
リノベーション住宅
コートヤード祐天寺 501号室
オープンルーム
価格18,490万円
月額ローンのシミュレーション 価格改定
オープンルーム
開催中
開催中
【開催日時】4/25(土)、4/26(日)10:00~18:00 ※予約可能枠として11:00~、13:00~、15:00~、17:00~がございます。
ご希望の方は、ビデオ通話での内見が可能です。
自宅からバーチャル内覧会を開催中です。
オンラインで物件をご案内します。
オンラインで物件をご案内します。
お電話での問い合わせ(10:00-19:00)
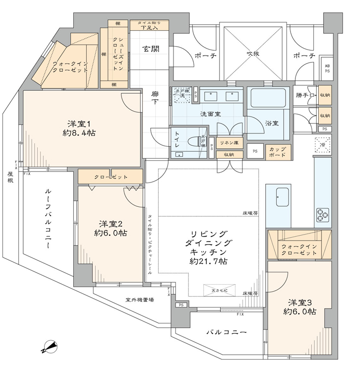
物件概要
リノベーション内容
- 構造鉄骨鉄筋コンクリート造・鉄筋コンクリート造地上9階建5階部分
- 間取り3LDK+2WIC・SIC
- 専有面積106.51㎡(壁芯)
- バルコニー面積5.61 ㎡
- 築年月1998(平成10)年2月
- 総戸数30戸
- 土地権利所有権
- 用途地域近隣商業地域
- 現況空室
- 引渡日即可
- 駐車場無 ※本住戸には分譲駐車場の持分は含まれておりません。
- ペット飼育不可
- 事務所使用不可
- 管理費24,300円/月
- 修繕積立金14,580円/月
- 管理形態全部委託管理(日勤)
- 管理会社日本ハウズイング
- 施工会社㈱富士工
- 旧分譲会社㈱ハウジングセンター
- 設備都市ガス・公営水道・本下水・EV・オートロック・宅配ボックス
- 備考駐輪場:空無(1台無償) ・ バイク置場:無
インターネット(NTTBフレッツ・イッツコム)
CATV(イッツコム)
修繕積立金総額:27,632,224円(2025年3月現在)
固定資産税・都市計画税:192,688円(2025年度概算)
ポーチ面積 : 8.26m²
ルーフバルコニー面積 : 8.00m²
そ の 他 : 240円/月(ルーフバルコニー使用料) - 修繕履歴
- フローリング新規貼替
- 壁・天井クロス新規貼替
- 給水管・給湯管新規交換(専有部)
- 建具・玄関収納等新規交換
- 田中工藝製洗面化粧台新規交換
- TOTO製洗浄便座付トイレ新規交換
- TOTO製ユニットバス新規交換(浴室換気乾燥機・ヘッドレスト・肩湯腰湯・調光調色システム付)
- 田中工藝製システムキッチン新規交換(食器洗い機付)
- 照明器具新規設置
- エアコン1基新規設置
- 床暖房マット新規設置
- 給湯器新規交換(追焚式)…等
Google Maps Loading...
- 所在地 : 東京都目黒区祐天寺2丁目15-19
- 交通 : 東急東横線『祐天寺』駅徒歩2分
東急東横線『学芸大学』駅徒歩14分
自宅からバーチャル内覧会を開催中です。
オンラインで物件をご案内します。
オンラインで物件をご案内します。
お電話での問い合わせ(10:00-19:00)









































