フォルム四谷外苑東 510号室|東京都新宿区
物件の価値を磨き上げた
リノベーション住宅
リノベーション住宅
フォルム四谷外苑東 510号室
オープンルーム
価格14,990万円
月額ローンのシミュレーション 価格改定
オープンルーム
開催中
開催中
【開催日時】5/23(土)、5/24(日)10:00~18:00 ※予約可能枠として11:00~、13:00~、15:00~、17:00~がございます。
ご希望の方は、ビデオ通話での内見が可能です。
自宅からバーチャル内覧会を開催中です。
オンラインで物件をご案内します。
オンラインで物件をご案内します。
お電話での問い合わせ(10:00-19:00)
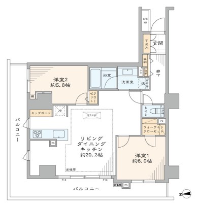
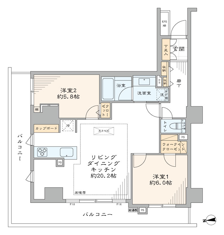
物件概要
リノベーション内容
- 構造鉄骨鉄筋コンクリート造地下1階地上15階建5階部分
- 間取り2LDK+WIC
- 専有面積70.65㎡(壁芯)
- バルコニー面積22.96 ㎡
- 築年月2004年2月
- 総戸数146戸
- 土地権利所有権
- 用途地域商業地域・第一種中高層住居専用地域
- 現況空室
- 引渡日即可
- 駐車場空有(30,600円~32,300円/月)
- ペット飼育可(犬猫は合計2匹まで・規約有)
- 事務所使用不可
- 管理費20,200円/月
- 修繕積立金17,100円/月
- 管理形態全部委託管理(日勤)
- 管理会社大和ライフネクスト
- 施工会社木内建設
- 旧分譲会社リクルートコスモス
- 設備都市ガス・公営水道・本下水・EV・オートロック・宅配ボックス
- 備考駐輪場:空有(1,200円~2,400円/年)
バイク置場:空有(24,000円/年)
インターネット(NTT・KDDI)
CATV(J:COM港・新宿)
修繕積立金総額:163,345,454円(2024年6月現在)
固定資産税・都市計画税:219,874円(2025年度概算)
町 会 費 : 100円/月 - 修繕履歴
- フローリング新規貼替
- 壁・天井クロス新規貼替
- 建具・玄関収納等新規交換
- オリジナル洗面化粧台新規交換
- TOTO製洗浄便座付トイレ新規交換
- LIXIL製ユニットバス新規交換(浴室換気乾燥機付)
- オリジナルシステムキッチン新規交換(食器洗い機付)
- 照明器具新規設置
- エアコン2基新規設置
- 床暖房マット新規設置(LD)
- 給湯器新規交換(追焚式)…等
Google Maps Loading...
- 所在地 : 東京都新宿区左門町14-61
- 交通 : 東京メトロ丸ノ内線『四谷三丁目』駅徒歩4分
JR中央・総武線『信濃町』駅徒歩8分
自宅からバーチャル内覧会を開催中です。
オンラインで物件をご案内します。
オンラインで物件をご案内します。
お電話での問い合わせ(10:00-19:00)











































