イニシア築地 202号室|東京都中央区
物件の価値を磨き上げた
リノベーション住宅
リノベーション住宅
イニシア築地 202号室
オープンルーム
価格22,900万円
月額ローンのシミュレーション
オープンルーム
開催中
開催中
【開催日時】1/31(土)、2/1(日)10:00~18:00 ※予約可能枠として11:00~、13:00~、15:00~、17:00~がございます。
ご希望の方は、ビデオ通話での内見が可能です。
自宅からバーチャル内覧会を開催中です。
オンラインで物件をご案内します。
オンラインで物件をご案内します。
お電話での問い合わせ(10:00-19:00)
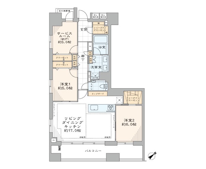
物件概要
リノベーション内容
- 構造鉄筋コンクリート造地上14階建2階部分
- 間取り2SLDK+WIC・SIC
- 専有面積83.29㎡(壁芯)
- バルコニー面積16.11 ㎡
- 築年月2014 (平成26)年2月
- 総戸数63戸
- 土地権利所有権
- 用途地域商業地域
- 現況空室
- 引渡日即可
- 駐車場空無(27,500円~32,000円/月)
- ペット飼育可(2匹まで飼育可(細則有)
- 事務所使用不可
- 管理費18,600円/月
- 修繕積立金13,400円/月
- 管理形態全部委託管理(日勤)
- 管理会社大和ライフネクスト㈱
- 施工会社㈱淺沼組
- 旧分譲会社㈱コスモスイニシア
- 設備都市ガス・公営水道・本下水・EV・宅配ボックス・オートロック
- 備考駐輪場:空有(100円~200円/月)
バイク置場:空有(2,000円/月)
インターネット(ヒカリライフネット・フレッツ光ネクスト)
CATV(東京ベイネットワーク)
修繕積立金総額:112,902,280円(2025年4月現在)
固定資産税・都市計画税:226,036円(2025年度概算)
そ の 他 : 100円/月(コミュニティ運営費) - 修繕履歴2021年11月 中間周波数漏洩対策工事(共視聴設備更新)
2021年 6月 排水ポンプ一斉交換
- フローリング新規貼替
- 壁・天井クロス新規貼替
- 給湯管新規交換(専有部)
- 建具・玄関収納等新規交換
- LIXIL製洗面化粧台新規交換
- TOTO製洗浄便座付トイレ新規交換
- TOTO製ユニットバス新規交換(浴室換気乾燥機・ヘッドレスト・肩湯腰湯・調光調色システム付)
- Panasonic製システムキッチン新規交換(食器洗い機付)
- 照明器具新規設置
- エアコン2基新規設置
- 床暖房マット新規交換(LD)
- 給湯器新規交換(追焚式))…等
Google Maps Loading...
- 所在地 : 東京都中央区築地2-11-5
- 交通 : 東京メトロ日比谷線『築地』駅徒歩1分
東京メトロ有楽町線『新富町』駅徒歩3分
都営浅草線『東銀座』駅徒歩7分
自宅からバーチャル内覧会を開催中です。
オンラインで物件をご案内します。
オンラインで物件をご案内します。
お電話での問い合わせ(10:00-19:00)











































