グランドミレーニア 2306号室|東京都豊島区
物件の価値を磨き上げた
リノベーション住宅
リノベーション住宅
グランドミレーニア 2306号室
価格23,480万円
月額ローンのシミュレーション
- 全411邸・31階建の超高層免震タワーレジデンス
- 再開発で発展を続ける池袋が徒歩圏で生活便利
- 天井近くから足元まで広がるパノラマウィンドウ
- 所在地 : 東京都豊島区南池袋1-11-19
- 交通 : JR山手線・湘南新宿ライン『池袋』駅徒歩6分
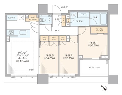
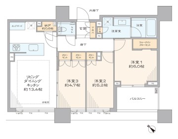
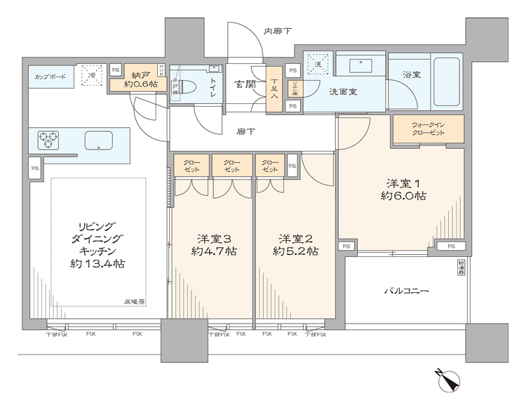
JR山手線『目白』駅徒歩9分 - 間取り : 3LDK+ WIC
- 専有面積 : 68.03 ㎡
当物件を
スマホで
チェック!!
- 24時間有人管理
- 2駅利用可能
- TVモニター付インターフォン
- オートロック
- トイレ新規交換
- トランクルーム
- ペット飼育可
- 光ファイバー導入済
(共用部まで) - 宅配ボックス
- 床暖房
- 浴室換気乾燥機
- 眺望良好
- 買物便利
- 食器洗い機
- 駐車場
- 駐輪場
自宅からバーチャル内覧会を開催中です。
オンラインで物件をご案内します。
オンラインで物件をご案内します。
お電話での問い合わせ(10:00-19:00)
物件概要
リノベーション内容
- 構造鉄筋コンクリート造地下1階地上31階建23階部分
- 間取り3LDK+ WIC
- 専有面積68.03㎡(壁芯)
- バルコニー面積5.64 ㎡
- 築年月2015(平成27)年2月
- 総戸数411戸
- 土地権利所有権
- 用途地域商業地域
- 現況空室
- 引渡日即可
- 駐車場空有(29,000円~50,000円/月)
- ペット飼育可(飼育細則有)
- 事務所使用不可
- 管理費24,990円/月
- 修繕積立金20,670円/月
- 管理形態全部委託管理(常駐)
- 管理会社住友不動産建物サービス㈱
- 施工会社前田建設工業㈱
- 旧分譲会社住友不動産㈱
- 設備都市ガス・公営水道・本下水・エレベーター・オートロック・宅配BOX
- 備考駐輪場:空有(200円~500円/月)
バイク置場:空有(3,000円~7,000円/月)
インターネット((一括加入)SUISUI・(任意)NTT・KDDI)
TV関係(スカパーJSAT)
修繕積立金総額:589,294,288円(2025年9月現在)
固定資産税・都市計画税:212,636円(2025年度概算)
・壁芯面積にはトランクルーム面積:0.58m²を含む。
・一括受電方式:㈱トーエネック
・駐車場、駐輪場、バイク置場などの空き状況は2025年11月21日時点での状況です。 - 修繕履歴2021年 共用部鉄部塗装工事
- 壁・天井クロス新規貼替
- ガスコンロ新規交換
- ディスポーザー新規交換
- LIXIL製洗面化粧台新規交換
- LIXIL製洗浄便座付トイレ新規交換
- 浴室換気乾燥機新規交換
- 食器洗い機新規交換
- 洗濯パン新規交換
- エアコン二基新規設置(LDK・洋室3)
- 給湯器新規交換(追焚式)…等
Google Maps Loading...
- 所在地 : 東京都豊島区南池袋1-11-19
- 交通 : JR山手線・湘南新宿ライン『池袋』駅徒歩6分
JR山手線『目白』駅徒歩9分
自宅からバーチャル内覧会を開催中です。
オンラインで物件をご案内します。
オンラインで物件をご案内します。
お電話での問い合わせ(10:00-19:00)








































