品川Vタワー 1907号室|東京都港区
物件の価値を磨き上げた
リノベーション住宅
リノベーション住宅
品川Vタワー 1907号室
価格31,990万円
月額ローンのシミュレーション
自宅からバーチャル内覧会を開催中です。
オンラインで物件をご案内します。
オンラインで物件をご案内します。
お電話での問い合わせ(10:00-19:00)
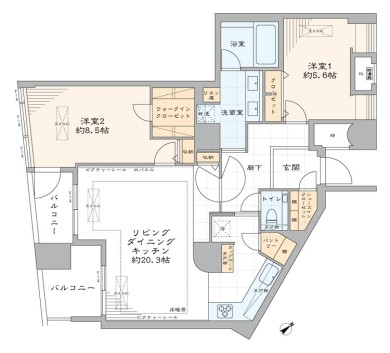
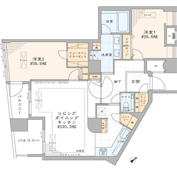
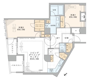
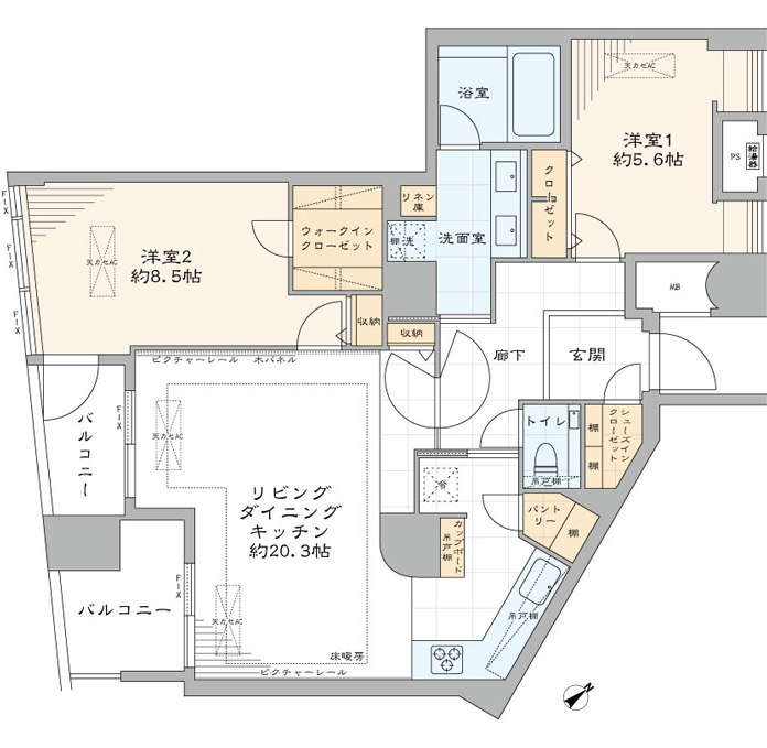
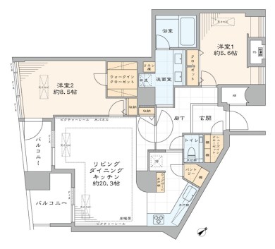
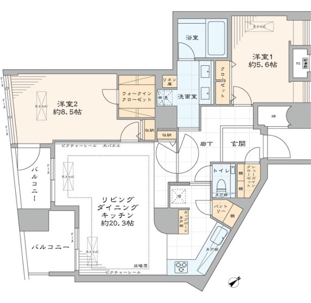
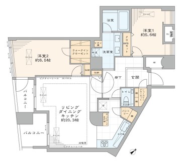
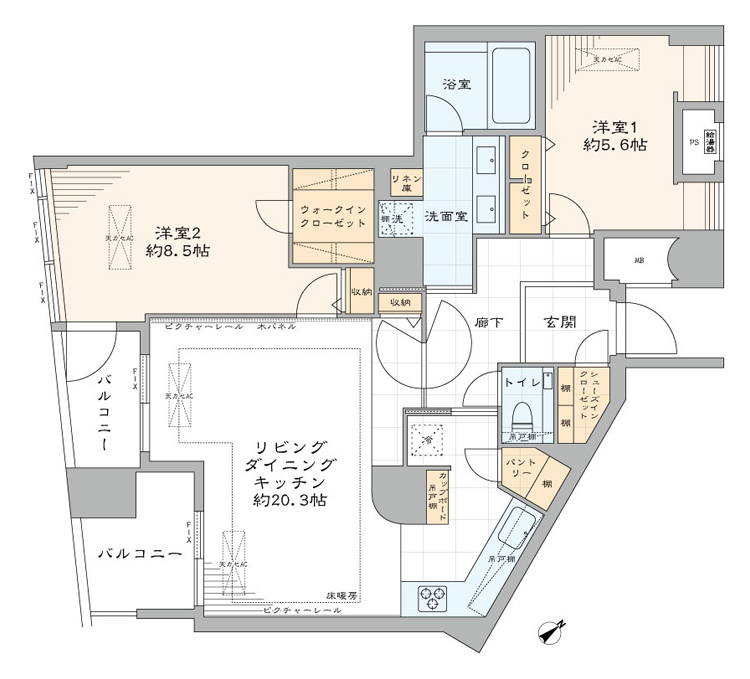
物件概要
リノベーション内容
- 構造鉄骨・鉄骨鉄筋コンクリート・鉄筋コンクリート造陸屋根 地下3階地上43階建19階部分
- 間取り2LDK+WIC・SIC
- 専有面積87.08㎡(壁芯)
- バルコニー面積8.91 ㎡
- 築年月2003(平成15)年3月
- 総戸数650戸
- 土地権利所有権
- 用途地域商業地域
- 現況空室
- 引渡日即可
- 駐車場空有(30,000円~45,000円/月)
- ペット飼育可(体長50cm体重10㎏以下・2匹以内・規約有)
- 事務所使用不可
- 管理費28,600円/月
- 修繕積立金78,460円/月
- 管理形態全部委託管理(日勤)
- 管理会社㈱東急コミュニティ
- 施工会社大林・大日本・不動建設共同企業体
- 旧分譲会社三菱商事㈱・東京建物㈱・近鉄不動産㈱・他
- 設備都市ガス・公営水道・本下水・EV・オートロック・宅配ボックス
- 備考駐輪場:空有(200円~500円/月)
バイク置場:空有(2,000円~3,000円/月)
インターネット(イッツ・コミュニケーションズ㈱
NTTBフレッツ光(個別契約・別途料金))
CATV(スカパーJSAT㈱(個別契約必要))
トランクルーム専用使用権付き(NO227区画部分)
修繕積立金総額:1,277,035,619円(2024年9月現在)
固定資産税・都市計画税:283,800円(2025年度概算)
そ の 他 : 1,265円/月(インターネット料) - 修繕履歴2021年8月 エレベーター内装改修工事
2021年7月 大規模修繕工事
- フローリング新規貼替
- 壁・天井クロス新規貼替
- 給水管・給湯管新規交換(専有部)
- 建具・玄関収納等新規交換
- TOTO製洗浄便座付トイレ新規交換
- 田中工藝製オリジナル洗面化粧台新規交換
- LIXIL製ユニットバス新規交換(浴室換気乾燥機付)
- 田中工藝製オリジナルシステムキッチン新規交換(食器洗い機付)
- 照明器具新規設置
- エアコン4基新規設置
- 床暖房マット新規設置(LD)
- 給湯器新規交換(追焚式)…等
Google Maps Loading...
- 所在地 : 東京都港区港南2-16-7
- 交通 : JR山手線・他『品川』駅徒歩6分
自宅からバーチャル内覧会を開催中です。
オンラインで物件をご案内します。
オンラインで物件をご案内します。
お電話での問い合わせ(10:00-19:00)











































