グランドミレーニア 2207号室|東京都豊島区
物件の価値を磨き上げた
リノベーション住宅
リノベーション住宅
グランドミレーニア 2207号室
価格29,990万円
月額ローンのシミュレーション
自宅からバーチャル内覧会を開催中です。
オンラインで物件をご案内します。
オンラインで物件をご案内します。
お電話での問い合わせ(10:00-19:00)
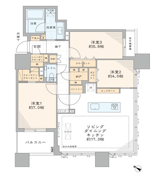
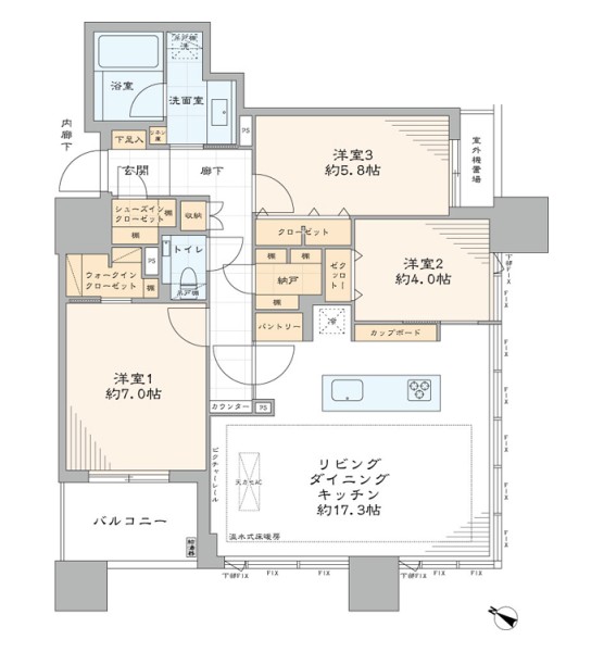
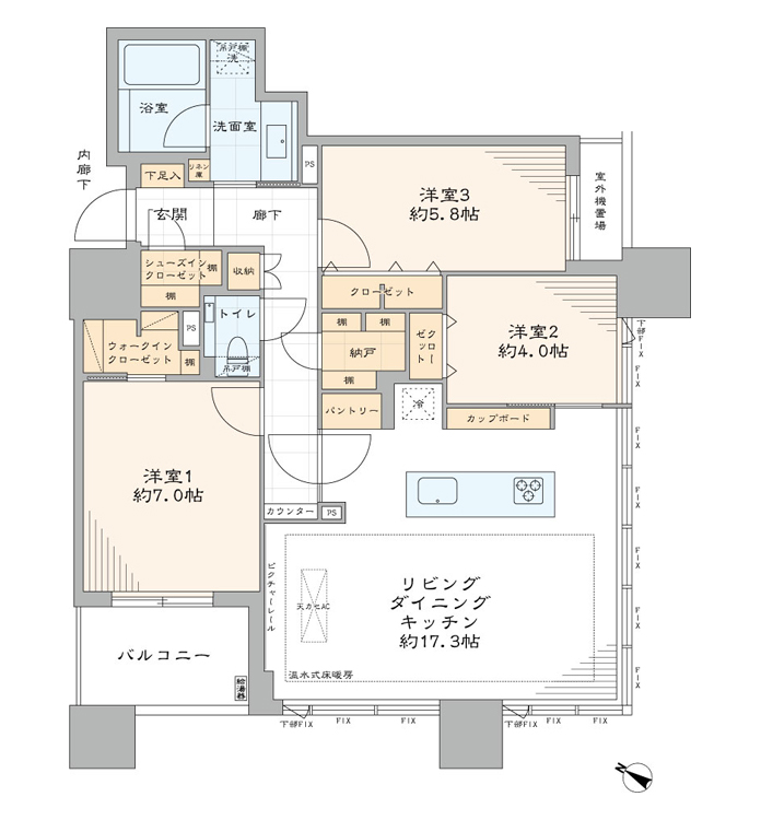
物件概要
リノベーション内容
- 構造鉄筋コンクリート造地下1階地上31階22階部分
- 間取り3LDK+WIC・SIC・納戸
- 専有面積82.59㎡(壁芯)
- バルコニー面積5.30 ㎡
- 築年月2015(平成27)年2月
- 総戸数411戸
- 土地権利所有権
- 用途地域商業地域
- 現況空室
- 引渡日即可
- 駐車場空有(29,000円~50,000円/月)
- ペット飼育可(規約有)
- 事務所使用不可
- 管理費30,060円/月
- 修繕積立金25,090円/月
- 管理形態全部委託管理(常駐)
- 管理会社住友不動産建物サービス㈱
- 施工会社前田建設工業㈱
- 旧分譲会社住友不動産建物㈱
- 設備都市ガス・公営水道・本下水・EV・オートロック・宅配ボックス
- 備考駐輪場:空有(200円~500円/月)
バイク置場:空有(3,000円~7,000円/月)
インターネット(一括加入:SUISUI 任意:NTT・KDDI)
CATV(スカパーJSAT)
トランクルーム専用使用権(地下1階)
修繕積立金総額:589,294,288円(2025年9月現在)
固定資産税・都市計画税:261,268円(2025年度概算) - 修繕履歴
- フローリング新規貼替
- 壁・天井クロス新規貼替
- 建具・玄関収納等新規交換
- TOTO製洗面化粧台新規交換
- TOTO製洗浄便座付トイレ新規交換
- LIXIL製ユニットバス新規交換(浴室換気乾燥機付)
- オリジナルシステムキッチン新規交換(食器洗い機・ディスポーザー付)
- 照明器具新規設置
- エアコン1基新規設置
- 床暖房マット新規設置(LD)
- 給湯器新規交換(追焚式)…等
Google Maps Loading...
- 所在地 : 東京都豊島区南池袋1-11-19
- 交通 : JR山手線・JR湘南新宿ライン『池袋』駅徒歩6分
JR山手線『目白』駅徒歩9分
自宅からバーチャル内覧会を開催中です。
オンラインで物件をご案内します。
オンラインで物件をご案内します。
お電話での問い合わせ(10:00-19:00)











































