アイ・マークタワー 304号室|東京都中央区
物件の価値を磨き上げた
リノベーション住宅
リノベーション住宅
アイ・マークタワー 304号室
価格16,480万円
月額ローンのシミュレーション
自宅からバーチャル内覧会を開催中です。
オンラインで物件をご案内します。
オンラインで物件をご案内します。
お電話での問い合わせ(10:00-19:00)
物件概要
リノベーション内容
- 構造鉄筋コンクリート造地下2階地上32階建3階部分
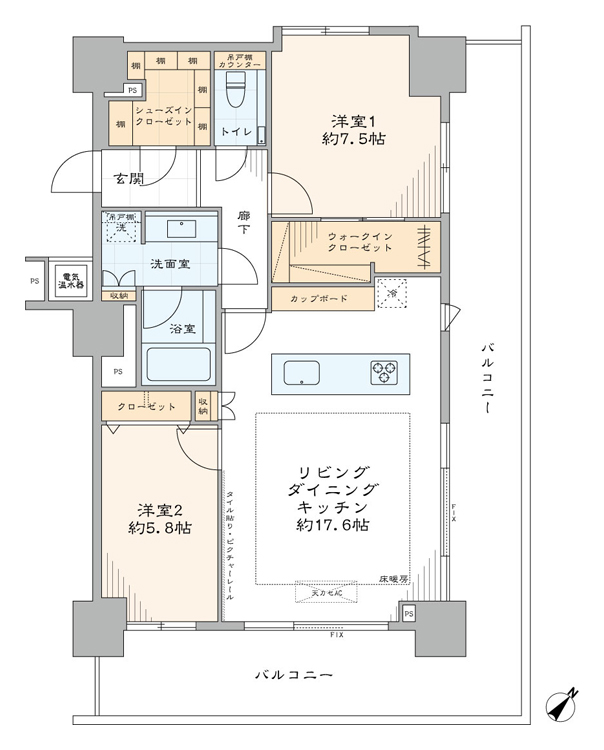
- 間取り2LDK+WIC・SIC
- 専有面積77.48㎡(壁芯)
- バルコニー面積31.02 ㎡
- 築年月2003年(平成15年)年8月
- 総戸数358戸
- 土地権利所有権
- 用途地域商業地域
- 現況空室
- 引渡日即可
- 駐車場空有(35,000円~50,000円/月)
- ペット飼育可(規約有)
- 事務所使用不可
- 管理費23,200円/月
- 修繕積立金16,000円/月
- 管理形態全部委託管理(日勤)
- 管理会社ライフポート西洋
- 施工会社大林組/青木建設共同企業体
- 旧分譲会社㈱ニューシティコーポレーション
- 設備オール電化・公営水道・本下水・EV・オートロック・宅配ボックス
- 備考駐輪場:空有(200円~600円/月)
バイク置場:空有(2,000円~3,000円/月)
インターネット(つなぐネットコミュニケーションズ)
CATV(スカパー光)
トランクルーム:住戸付随
修繕積立金総額:243,739,000円(2024年12月現在)
固定資産税・都市計画税:165,515円(2025年度概算)
そ の 他 : 2,000円/月(インターネット料) - 修繕履歴2024年10月 防犯カメラ更新工事
2023年 8月 インターホン設備更新工事
2023年 3月 大規模修繕工事
- フローリング新規貼替
- 壁・天井クロス新規貼替
- 建具・玄関収納等新規交換
- LIXIL製洗面化粧台新規交換
- TOTO製洗浄便座付トイレ新規交換
- TOTO製ユニットバス新規交換(浴室換気乾燥機付)
- 田中工藝製システムキッチン新規交換(食器洗い機付)
- 電気温水器交換(追焚式)
- 照明器具新規設置
- エアコン1基新規設置
- 床暖房マット新規設置(LD)…等
Google Maps Loading...
- 所在地 : 東京都中央区月島1-8-1
- 交通 : 東京メトロ有楽町線・都営大江戸線『月島』駅徒歩1分
自宅からバーチャル内覧会を開催中です。
オンラインで物件をご案内します。
オンラインで物件をご案内します。
お電話での問い合わせ(10:00-19:00)










































