M.M.TOWERSFORESISL棟D1207号室 |神奈川県横浜市
物件の価値を磨き上げた
リノベーション住宅
リノベーション住宅
M.M.TOWERSFORESISL棟D1207号室
価格13,980万円
月額ローンのシミュレーション
自宅からバーチャル内覧会を開催中です。
オンラインで物件をご案内します。
オンラインで物件をご案内します。
お電話での問い合わせ(10:00-19:00)
物件概要
リノベーション内容
- 構造鉄筋コンクリート造・鉄骨造地下1階地上30階建12階部分
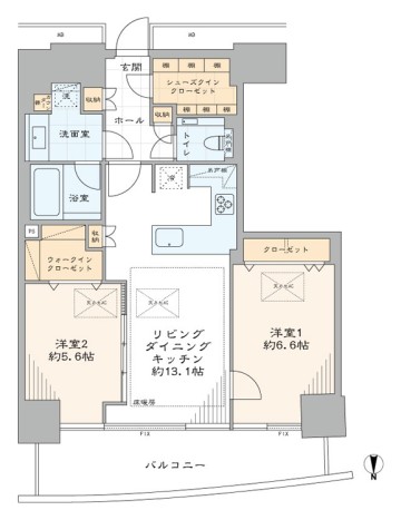
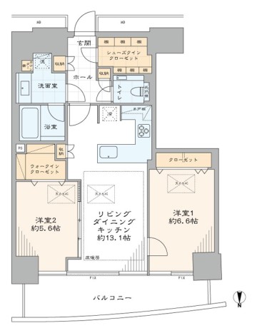
- 間取り2LDK+WIC・SIC
- 専有面積66.74㎡(壁芯)
- バルコニー面積13.53 ㎡
- 築年月2007(平成19)年11月
- 総戸数605戸
- 土地権利所有権
- 用途地域商業地域
- 現況空室
- 引渡日即可
- 駐車場空有(24,150円~32,550円/月)
- ペット飼育可(成長時体長70cm体重10kg以内・2匹まで・飼育細則有)
- 事務所使用不可
- 管理費16,500円/月
- 修繕積立金22,100円/月
- 管理形態全部委託管理(日勤)
- 管理会社三菱地所コミュニティ㈱
- 施工会社鹿島建設㈱
- 旧分譲会社三菱地所㈱・他2社
- 設備オール電化(みなとみらい熱供給システム)・公営水道・本下水 エレベーター・オートロック・宅配BOX
- 備考駐車場:空有(24,150円~32,550円/月)
駐輪場:空有(210円/月) ・ バイク置場:空有(3,150円/月)
トランクルーム:有(無償)
インターネット(J:COM・つなぐネット・NTT・NURO光)
CATV(J:COM)
修繕積立金総額:2,191,863,064円(2024年8月現在)
固定資産税・都市計画税:223,487円(2026年度概算)
そ の 他 : 3,539円/月(給湯冷暖房基本料3,330円※1・インターネット料209円)
※1 基本料の他に使用量に応じて月額の使用料がかかります - 修繕履歴2023年 大規模修繕工事
- フローリング新規貼替
- 壁・天井クロス新規貼替
- 給水管・給湯管新規交換(専有部)
- 建具新規交換
- LIXIL製洗面化粧台新規交換
- TOTO製洗浄便座付トイレ新規交換
- LIXIL製ユニットバス新規交換(浴室換気乾燥機付)
- オリジナルシステムキッチン新規交換(食器洗い機付)
- 照明器具新規設置
- 床暖房マット新規設置(LD)…等
Google Maps Loading...
- 所在地 : 神奈川県横浜市西区みなとみらい4-9-2
- 交通 : みなとみらい線『みなとみらい』駅徒歩3分
自宅からバーチャル内覧会を開催中です。
オンラインで物件をご案内します。
オンラインで物件をご案内します。
お電話での問い合わせ(10:00-19:00)










































