プロムナード仲町台9号棟 812号室|神奈川県横浜市
物件の価値を磨き上げた
リノベーション住宅
リノベーション住宅
プロムナード仲町台9号棟 812号室
オープンルーム
価格7,290万円
月額ローンのシミュレーション 価格改定
オープンルーム
開催中
開催中
【開催日時】5/23(土)、5/24(日)10:00~18:00 ※予約可能枠として11:00~、13:00~、15:00~、17:00~がございます。
ご希望の方は、ビデオ通話での内見が可能です。
自宅からバーチャル内覧会を開催中です。
オンラインで物件をご案内します。
オンラインで物件をご案内します。
お電話での問い合わせ(10:00-19:00)
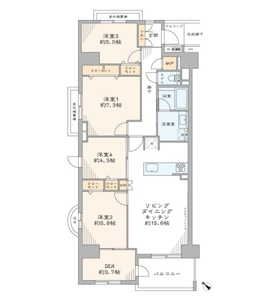
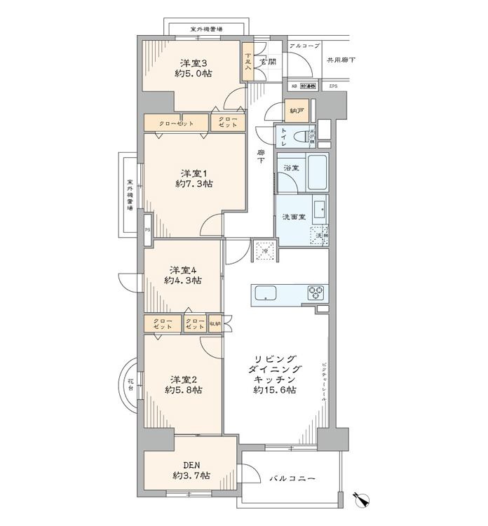
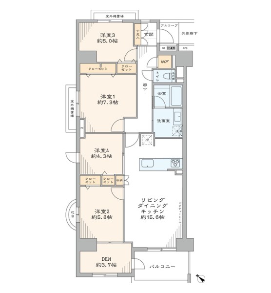
物件概要
リノベーション内容
- 構造鉄筋コンクリート造地上9階建8階部分
- 間取り4LDK+S(納戸)
- 専有面積92.19㎡(壁芯)
- バルコニー面積6.35 ㎡
- 築年月1997(平成9)年2月
- 総戸数417戸
- 土地権利所有権
- 用途地域第二種住居地域・第一種中高層住居専用地域
- 現況空室
- 引渡日即可
- 駐車場空有(4,000円~13,000円/月)
- ペット飼育不可
- 事務所使用不可
- 管理費11,100円/月
- 修繕積立金26,600円/月
- 管理形態全部委託管理(日勤)
- 管理会社三井不動産レジデンシャルサービス
- 施工会社大木建設
- 旧分譲会社住宅・都市整備公団
- 設備都市ガス・公営水道・本下水・エレベーター
- 備考駐輪場:空有(1,200円~3,600円/年)
バイク置場:空有(1,000円~2,000円/月)
インターネット(NTT・KDDI・U-NEXT・イッツコミュニケーションズ)
CATV(イッツコミュニケーションズ)
修繕積立金総額:158,853,621円(2025年9月現在)
固定資産税・都市計画税:149,012円(2025年度概算) - 修繕履歴2025年 エレベーター更新工事
2022年 大規模修繕工事
- フローリング新規貼替
- 壁・天井クロス新規貼替
- 給湯管新規交換(専有部)
- 建具・玄関収納等新規交換
- Panasonic製洗面化粧台新規交換
- TOTO製洗浄便座付トイレ新規交換
- TOTO製ユニットバス新規交換(浴室換気乾燥機付)
- LIXIL製システムキッチン新規交換(食器洗い機付)
- 照明器具新規設置
- エアコン3基新規設置予定
- 給湯器新規交換(追焚式)…等
Google Maps Loading...
- 所在地 : 神奈川県横浜市都筑区仲町台5-7-9
- 交通 : 横浜ブルーライン『仲町台』駅徒歩5分
自宅からバーチャル内覧会を開催中です。
オンラインで物件をご案内します。
オンラインで物件をご案内します。
お電話での問い合わせ(10:00-19:00)









































