神楽坂トワイシアヒルサイドレジデンス 714号室|東京都新宿区
物件の価値を磨き上げた
リノベーション住宅
リノベーション住宅
神楽坂トワイシアヒルサイドレジデンス 714号室
価格23,990万円
月額ローンのシミュレーション
- 南東向き7階部分につき陽当たり良好
- 8.16m²のプライベートポーチ付
- 総戸数237戸のビッグコミュニティ
- 所在地 : 東京都新宿区白銀町6-1
- 交通 : 東京メトロ東西線『神楽坂』駅徒歩4分
東京メトロ南北線・東京メトロ東西線・東京メトロ有楽町線
都営大江戸線『飯田橋』駅徒歩7分
JR総武線『飯田橋』駅徒歩9分
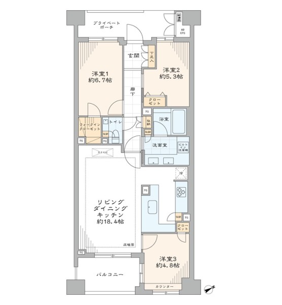
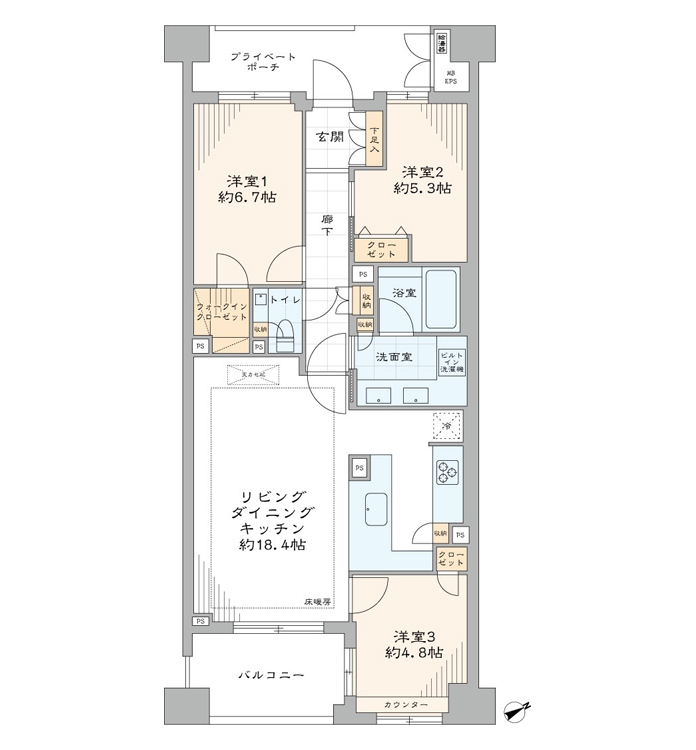
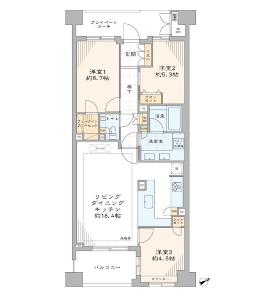
都営大江戸線『牛込神楽坂』駅徒歩6分 - 間取り : 3LDK+WIC
- 専有面積 : 80.27 ㎡
当物件を
スマホで
チェック!!
- 2駅利用可能
- CATV導入済み
- オートロック
- トイレ新規交換
- ペット飼育可
- 光ファイバー導入済
(共用部まで) - 公園至近
- 宅配ボックス
- 床暖房
- 浴室換気乾燥機
- 食器洗い機
- 駅近
- 駐車場
- 駐輪場
自宅からバーチャル内覧会を開催中です。
オンラインで物件をご案内します。
オンラインで物件をご案内します。
お電話での問い合わせ(10:00-19:00)
物件概要
リノベーション内容
- 構造鉄筋コンクリート造地上12階建7階部分
- 間取り3LDK+WIC
- 専有面積80.27㎡(壁芯)
- バルコニー面積7.10 ㎡
- 築年月2004(平成16)年2月
- 総戸数237戸
- 土地権利所有権
- 用途地域第二種中高層住居専用地域
- 現況空室
- 引渡日即可
- 駐車場空有(29,000円~39,000円/月)
- ペット飼育可(成長時体高40㎝以内・犬猫2匹まで・規約有)
- 事務所使用不可
- 管理費11,200円/月
- 修繕積立金14,400円/月
- 管理形態全部委託管理(日勤)
- 管理会社三菱地所コミュニティ㈱
- 施工会社㈱大林組
- 旧分譲会社野村不動産㈱・三菱地所㈱
- 設備都市ガス・公営水道・本下水・EV・オートロック・宅配ボックス
- 備考ポーチ面積 : 8.16m²
バイク置場:空有(1,000円/月)
駐輪場:空有(100円~500円/月)
インターネット(つなぐネット)
CATV(J-COM港新宿)
修繕積立金総額:480,362,009円(2024年11月現在)
固定資産税・都市計画税:196,829円(2025年度概算)
そ の 他 : 2,058円/月(ホームセキュリティ料968円・町会費負担金100円・インターネット設備維持費990円) - 修繕履歴2025年 4月 テレビ共視聴設備 劣化機器更新工事
2025年 1月 機械式駐車装置保全工事
2024年10月 自動火災報知設備更新工事
- フローリング新規貼替
- 壁・天井クロス新規貼替
- 給湯管新規交換(専有部)
- 建具・玄関収納等新規交換
- TOTO製洗浄便座付トイレ新規交換
- 田中工藝製オリジナル洗面化粧台新規交換
- LIXIL製ユニットバス新規交換(浴室換気乾燥機付)
- 田中工藝製オリジナルシステムキッチン新規交換(食器洗い機付)
- 照明器具新規設置
- エアコン1基新規設置
- 床暖房マット新規設置(LD)
- 給湯器新規交換(追焚式)…等
Google Maps Loading...
- 所在地 : 東京都新宿区白銀町6-1
- 交通 : 東京メトロ東西線『神楽坂』駅徒歩4分
東京メトロ南北線・東京メトロ東西線・東京メトロ有楽町線
都営大江戸線『飯田橋』駅徒歩7分
JR総武線『飯田橋』駅徒歩9分
都営大江戸線『牛込神楽坂』駅徒歩6分
自宅からバーチャル内覧会を開催中です。
オンラインで物件をご案内します。
オンラインで物件をご案内します。
お電話での問い合わせ(10:00-19:00)











































