運命のリノベーション
物件と出会える場所
物件と出会える場所
[過去取扱物件]
令和2年築 邸宅街『元代々木』 に佇む
- 所在地 : 東京都渋谷区
- 交通 : 小田急線・東京メトロ千代田線『代々木上原』駅徒歩7分
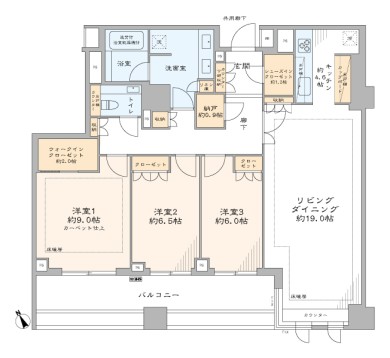
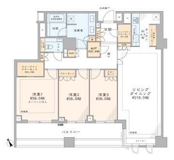
- 間取り : 3LDK+WIC・SIC
- 専有面積 : 111.81 ㎡
- CATV導入済み
- TVモニター付インターフォン
- オートロック
- トイレ新規交換
- トランクルーム
- ペット飼育可
- 光ファイバー導入済
(共用部まで) - 公園至近
- 宅配ボックス
- 床暖房
- 浴室換気乾燥機
- 眺望良好
- 食器洗い機
- 駐輪場
物件概要
リノベーション内容
- 構造鉄筋コンクリート造地上6階建5階部分
- 間取り3LDK+WIC・SIC
- 専有面積111.81㎡(壁芯)
- バルコニー面積17.49 ㎡
- 土地権利所有権
- 用途地域第一種低層住居専用地域・第一種住居地域
- 駐車場空無(39,000円/月)
- ペット飼育可(2頭まで・細則有)
- 事務所使用不可
- 洋室1カーペット新規貼替
- ガラストップコンロ新規交換
- 壁・天井クロス新規貼替
- 浄水器カートリッジ新規交換
- TOTO製洗浄便座付トイレ新規交換…等










































