運命のリノベーション
物件と出会える場所
物件と出会える場所
[過去取扱物件]
『田原町』駅徒歩5分 複数路線・駅利用可
- 所在地 : 東京都台東区
- 交通 : 東京メトロ銀座線『田原町』駅徒歩5分
東京メトロ大江戸線『新御徒町』駅徒歩10分
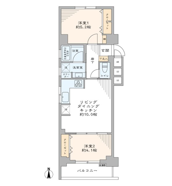
JR山手線・JR京浜東北線・他3線『上野』駅徒歩12分 - 間取り : 2LDK
- 専有面積 : 46.80 ㎡
- 2駅利用可能
- CATV導入済み
- TVモニター付インターフォン
- トイレ新規交換
- 光ファイバー導入済
(共用部まで) - 浴室換気乾燥機
- 眺望良好
- 角部屋
- 買物便利
- 食器洗い機
- 駅近
- 駐輪場
物件概要
リノベーション内容
- 構造鉄骨鉄筋コンクリート造地下1階地上12階建10階部分
- 間取り2LDK
- 専有面積46.80㎡(壁芯)
- バルコニー面積4.40 ㎡
- 土地権利所有権
- 用途地域商業地域
- 駐車場無
- ペット飼育不可
- 事務所使用不可
- フローリング新規貼替
- 給水管・給湯管新規交換(専有部)
- 建具・玄関収納等新規交換
- LIXIL製洗面化粧台新規交換
- TOTO製洗浄便座付トイレ新規交換
- LIXIL製ユニットバス新規交換(浴室換気乾燥機付)
- トクラス製システムキッチン新規交換(食器洗浄乾燥機付)
- TVモニター付インターホン新規交換
- 壁・天井クロス新規貼替
- 照明器具新規設置
- エアコン一基新規設置
- 給湯器新規交換(追焚式)…等



































