運命のリノベーション
物件と出会える場所
物件と出会える場所
[過去取扱物件]
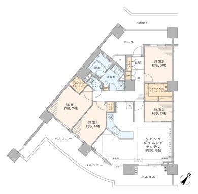
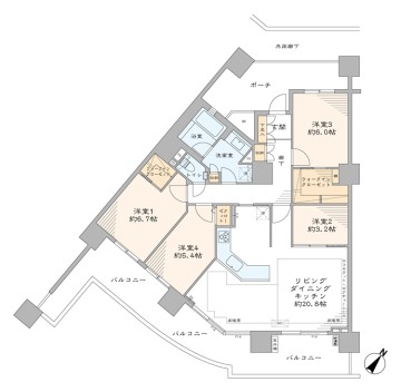
多摩川を見渡す眺望 ワイドスパン設計
- 所在地 : 東京都大田区
- 交通 : 東急多摩川線『下丸子』駅徒歩12分
東急多摩川線『武蔵新田』駅徒歩13分 - 間取り : 4LDK+2WIC
- 専有面積 : 98.98 ㎡
- 2駅利用可能
- CATV導入済み
- TVモニター付インターフォン
- オートロック
- トイレ新規交換
- ペット飼育可
- 光ファイバー導入済
(共用部まで) - 宅配ボックス
- 床暖房
- 浴室換気乾燥機
- 眺望良好
- 食器洗い機
- 駐輪場
物件概要
リノベーション内容
- 構造鉄筋コンクリート造地下1階地上25階建21階部分
- 間取り4LDK+2WIC
- 専有面積98.98㎡(壁芯)
- バルコニー面積29.65 ㎡
- 土地権利所有権
- 用途地域工業地域
- 駐車場空無(9,500円~13,500円/月)車種制限有
- ペット飼育:可(大型犬飼育可・飼育細則有)
- 事務所使用不可
- フローリング新規貼替
- 給水管・給湯管新規交換(専有部)
- 建具・玄関収納等新規交換
- LIXIL製洗面化粧台新規交換
- TOTO製洗浄便座付トイレ新規交換
- TOTO製ユニットバス新規交換(浴室換気乾燥機付)
- Panasonic製システムキッチン新規交換(食器洗浄乾燥機付)
- 給湯器新規交換(追焚式)
- 壁・天井クロス新規貼替
- 照明器具新規設置
- エアコン一基新規設置
- 床暖房マット新規設置(LD)
- ディスポーザー新規交換…等










































