運命のリノベーション
物件と出会える場所
物件と出会える場所
[過去取扱物件]
再開発が進む街『渋谷』が生活圏
- 所在地 : 東京都目黒区
- 交通 : JR山手線『渋谷』駅徒歩14分
京王井の頭線『神泉』駅徒歩8分
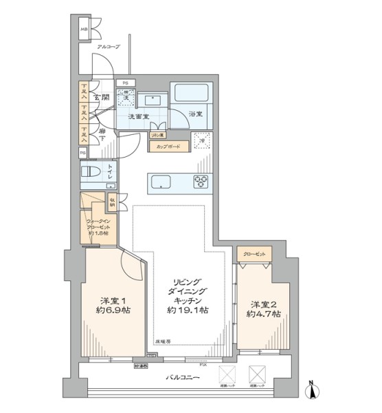
東急田園都市線『池尻大橋』駅徒歩10分 - 間取り : 2LDK+WIC
- 専有面積 : 70.65 ㎡
- 2駅利用可能
- CATV導入済み
- TVモニター付インターフォン
- オートロック
- トイレ新規交換
- ペット飼育可
- 光ファイバー導入済
(共用部まで) - 宅配ボックス
- 床暖房
- 浄水器
- 浴室換気乾燥機
- 眺望良好
- 食器洗い機
- 駐輪場
物件概要
リノベーション内容
- 構造鉄骨鉄筋コンクリート造地上15階建8階部分
- 間取り2LDK+WIC
- 専有面積70.65㎡(壁芯)
- バルコニー面積13.27 ㎡
- 土地権利所有権
- 用途地域商業地域・第一種住居地域
- 駐車場空無(空き区画をサブリース中、サブリース区画の明け渡しは解約予告3カ月 28,000円/月 2024.1.27現在)※1
- ペット飼育可(犬猫可・成長時体長70㎝以下かつ体重10kg以下2匹まで・規約有)
- 事務所使用不可
- フローリング新規貼替
- 給湯管新規交換(専有部)
- 建具・玄関収納等新規交換
- オリジナル洗面化粧台新規交換
- TOTO製洗浄便座付トイレ新規交換
- TOTO製ユニットバス新規交換(浴室換気乾燥機付)
- 壁・天井クロス新規貼替
- 照明器具新規設置
- エアコン一基新規設置
- 給湯器新規交換(追焚式)
- 床暖房マット新規設置(LD)
- オリジナルシステムキッチン新規交換(食器洗浄乾燥機付)…等











































