運命のリノベーション
物件と出会える場所
物件と出会える場所
[過去取扱物件]
表参道・青山・外苑に囲まれたエリア
- 所在地 : 東京都渋谷区
- 交通 : 東京メトロ銀座線・東京メトロ千代田線・東京メトロ半蔵門線
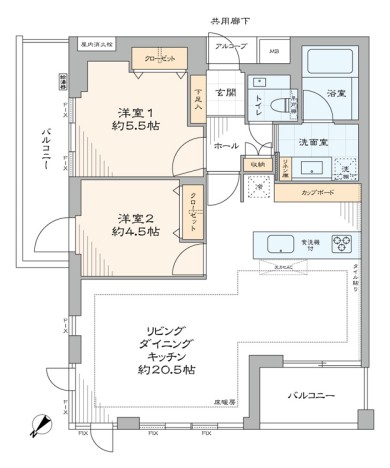
『表参道』駅徒歩9分 - 間取り : 2LDK
- 専有面積 : 65.50 ㎡
- 2駅利用可能
- CATV導入済み
- オートロック
- トイレ新規交換
- ペット飼育可
- 両面バルコニー
- 光ファイバー導入済
(共用部まで) - 宅配ボックス
- 床暖房
- 浴室換気乾燥機
- 眺望良好
- 角部屋
- 食器洗い機
- 駐輪場
物件概要
リノベーション内容
- 構造鉄筋コンクリート造地下1階地上5階建4階部分
- 間取り2LDK
- 専有面積65.50㎡(壁芯)
- バルコニー面積11.50 ㎡
- 土地権利所有権
- 用途地域第一種中高層住居専用地域
- 駐車場空無(40,000円~50,000円/月)
- ペット飼育可(2匹まで・ペットクラブ会費月額500円・規約有)
- 事務所使用不可
- フローリング新規貼替
- 建具・玄関収納等新規交換
- TOTO製洗面化粧台新規交換
- LIXIL製洗浄便座付トイレ新規交換
- TOTO製ユニットバス新規交換(浴室換気乾燥機付)
- 田中工藝製システムキッチン新規交換(食器洗浄乾燥機付)
- 壁・天井クロス新規貼替
- 照明器具新規設置
- エアコン一基新規設置
- 床暖房マット新規設置(LD)
- 給湯器新規交換(追焚式)…等











































