運命のリノベーション
物件と出会える場所
物件と出会える場所
[過去取扱物件]
小石川後楽園の豊かな緑を望む眺望
- 所在地 : 東京都文京区
- 交通 : JR中央総武線『水道橋』駅徒歩4分
都営大江戸線『飯田橋』駅徒歩5分
都営三田線『水道橋』駅徒歩6分
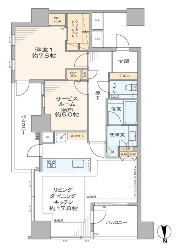
東京メトロ丸ノ内線『後楽園』駅徒歩8分 - 間取り : 1SLDK+WIC
- 専有面積 : 75.39 ㎡
- 24時間有人管理
- 2駅利用可能
- TVモニター付インターフォン
- オートロック
- トイレ新規交換
- ペット飼育可
- 両面バルコニー
- 事務所使用可
- 光ファイバー導入済
(共用部まで) - 公園至近
- 床暖房
- 最上階
- 浴室換気乾燥機
- 眺望良好
- 緑多い住環境
- 買物便利
- 食器洗い機
- 駅近
物件概要
リノベーション内容
- 構造鉄筋コンクリート地下1階地上21階建8階部分
- 間取り1SLDK+WIC
- 専有面積75.39㎡(壁芯)
- バルコニー面積14.44 ㎡
- 土地権利所有権
- 用途地域商業地域
- 駐車場空無(36,000円~42,000円/月)※1
- ペット飼育可(2匹まで・成長時体長70㎝及び体重15kgまで・細則有)
- 事務所使用可(居住環境を害しない簡易な事務所・規約有)
- フローリング新規貼替
- 建具・玄関収納等新規交換
- 田中工藝製洗面化粧台新規交換
- TOTO製洗浄便座付トイレ新規交換
- LIXIL製ユニットバス新規交換(浴室換気乾燥機付)
- 田中工藝製システムキッチン新規交換(食器洗い機付)
- 壁・天井クロス新規貼替
- 照明器具新規設置
- エアコン一基新規設置
- 床暖房マット新規設置(LD)
- 給湯器新規交換(追焚式)…等










































