運命のリノベーション
物件と出会える場所
物件と出会える場所
[過去取扱物件]
総戸数833戸・49階建のタワーレジデンス
- 所在地 : 東京都港区
- 交通 : JR山手線・JR京浜東北線『田町』駅徒歩8分
都営三田線・都営浅草線『三田』駅徒歩10分
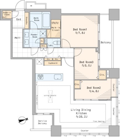
ゆりかもめ『芝浦ふ頭』駅徒歩10分 - 間取り : 3LDK+WIC
- 専有面積 : 98.37 ㎡
- 2駅利用可能
- CATV導入済み
- TVモニター付インターフォン
- オートロック
- トイレ新規交換
- 光ファイバー導入済
(共用部まで) - 公園至近
- 宅配ボックス
- 床暖房
- 浴室換気乾燥機
- 眺望良好
- 食器洗い機
- 駐車場
- 駐輪場
物件概要
リノベーション内容
- 構造鉄筋コンクリート造地下1階地上49階建11階部分
- 間取り3LDK+WIC
- 専有面積98.37㎡(壁芯)
- バルコニー面積7.07 ㎡
- 土地権利所有権
- 用途地域第二種住居地域
- 駐車場空有(29,000~32,000円/月)
- ペット飼育可(細則有)
- 事務所使用不可
- フローリング新規貼替
- 建具・玄関収納等新規交換
- LIXIL製洗面化粧台新規交換
- TOTO製洗浄便座付トイレ新規交換
- TOTO製ユニットバス新規交換(浴室換気乾燥機付)
- Panasonic製システムキッチン新規交換(食器洗い機付)…等
- 壁・天井クロス新規貼替
- 照明器具新規設置
- エアコン一基新規設置
- 床暖房マット新規設置(LD)










































