 
    運命のリノベーション
物件と出会える場所
    物件と出会える場所
[過去取扱物件]
鵠沼海岸まで徒歩1分 シャワールームあり
- 所在地 : 神奈川県藤沢市
- 交通 : 小田急江ノ島線『鵠沼海岸』駅徒歩7分
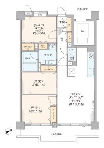
- 間取り : 2LDK+S(納戸)
- 専有面積 : 73.70 ㎡
- CATV導入済み
- TVモニター付インターフォン
- オートロック
- トイレ新規交換
- ペット飼育可
- 光ファイバー導入済
 (共用部まで)
- 公園至近
- 宅配ボックス
- 浴室換気乾燥機
- 眺望良好
- 食器洗い機
- 駐車場
- 駐輪場
物件概要
      リノベーション内容
    - 構造鉄筋コンクリート造地上5階建2階部分
- 間取り2LDK+S(納戸)
- 専有面積73.70㎡(壁芯)
- バルコニー面積10.75 ㎡
- 土地権利所有権
- 用途地域第二種住居地域
- 駐車場空有(8,000円~16,000円/月)
- ペット飼育可(飼育細則有)
- 事務所使用不可
- フローリング新規貼替
- 給水管・給湯管新規交換(専有部)
- 建具・玄関収納等新規交換
- Panasonic製洗面化粧台新規交換
- TOTO製洗浄便座付トイレ新規交換
- TOTO製追焚機能付ユニットバス新規交換(浴室換気乾燥機付)
- 壁・天井クロス新規貼替
- 給湯器新規交換(追焚式)
- 照明器具新規設置
- エアコン一基新規設置
- LIXIL製システムキッチン新規交換(食器洗浄機付)…等






































