運命のリノベーション
物件と出会える場所
物件と出会える場所
[過去取扱物件]
『護国寺』駅徒歩8分 / 『雑司が谷』駅徒歩1 6分
- 所在地 : 東京都文京区
- 交通 : 東京メトロ有楽町線『護国寺』駅徒歩8分
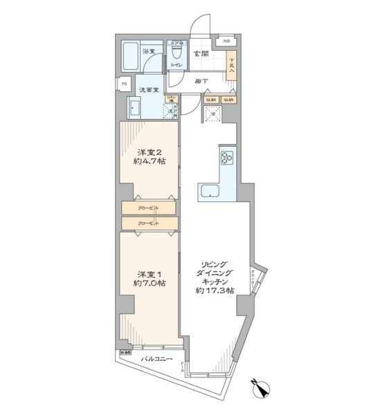
東京メトロ副都心線『雑司が谷』駅徒歩16分 - 間取り : 2LDK
- 専有面積 : 58.74 ㎡
- 2駅利用可能
- TVモニター付インターフォン
- トイレ新規交換
- 光ファイバー導入済
(共用部まで) - 公園至近
- 浴室換気乾燥機
- 緑多い住環境
- 角部屋
- 食器洗い機
- 駐輪場
物件概要
リノベーション内容
- 構造鉄筋コンクリート造地上4階建1階部分
- 間取り2LDK
- 専有面積58.74㎡(壁芯)
- バルコニー面積不明 ㎡
- 土地権利所有権
- 用途地域㈱日建工務店
- 駐車場無
- ペット飼育不可
- 事務所使用不可
- フローリング新規貼替
- 給水管・給湯管新規交換(専有部)
- 建具・玄関収納等新規交換
- Panasonic製洗面化粧台新規交換
- TOTO製洗浄便座付トイレ新規交換
- TOTO製ユニットバス新規交換(浴室換気乾燥機付)
- トクラス製システムキッチン新規交換(食器洗い機付)
- 壁・天井クロス新規貼替
- 照明器具新規設置
- エアコン一基新規設置
- 給湯器新規交換(追焚式)
- TVモニター付インターホン新規交換…等











































