運命のリノベーション
物件と出会える場所
物件と出会える場所
[過去取扱物件]
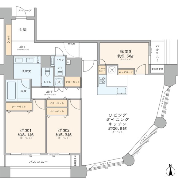
専有面積113m²・約26帖の開放感のあるLDK
- 所在地 : 東京都中央区
- 交通 : 東京メトロ有楽町線・都営大江戸線『月島』駅徒歩7分
- 間取り : 3LDK
- 専有面積 : 113.38 ㎡
- 24時間有人管理
- CATV導入済み
- オートロック
- トイレ新規交換
- ペット飼育可
- 両面バルコニー
- 光ファイバー導入済
(共用部まで) - 宅配ボックス
- 浴室換気乾燥機
- 眺望良好
- 緑多い住環境
- 角部屋
- 買物便利
- 食器洗い機
- 駐車場
- 駐輪場
物件概要
リノベーション内容
- 構造鉄骨鉄筋コンクリート造・鉄筋コンクリート造地下2階地上31階建25階部分
- 間取り3LDK
- 専有面積113.38㎡(壁芯)
- バルコニー面積7.58 ㎡
- 土地権利所有権
- 用途地域商業地域
- 駐車場敷地内地下有(外部管理)
- ペット飼育可(犬猫各2匹・計3匹まで・規約有)
- 事務所使用不可
- カーペット新規貼替
- 建具・玄関収納等新規交換
- 田中工藝製洗面化粧台新規交換
- TOTO製洗浄便座付トイレ新規交換
- LIXIL製ユニットバス新規交換(浴室換気乾燥機付)
- 壁・天井クロス新規貼替
- 照明器具新規設置
- エアコン5基新規設置
- 田中工藝製システムキッチン新規交換(食器洗い機付)…等











































