運命のリノベーション
物件と出会える場所
物件と出会える場所
[過去取扱物件]
安心の免震構造タワーレジデンス
- 所在地 : 東京都中央区
- 交通 : JR京葉線『八丁堀』駅徒歩1分
東京メトロ日比谷線『八丁堀』駅徒歩4分
東京メトロ東西線『茅場町』駅徒歩7分
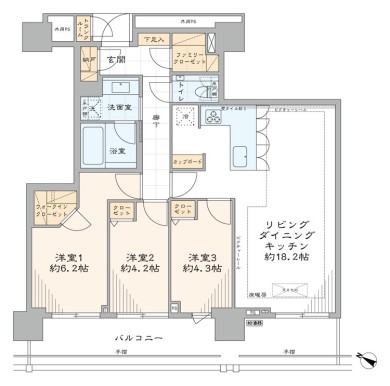
JR山手線・JR京浜東北線・他『東京』駅徒歩12分 - 間取り : 3LDK+WIC・FC・納戸・TR
- 専有面積 : 75.06 ㎡
- 24時間有人管理
- 2駅利用可能
- CATV導入済み
- TVモニター付インターフォン
- オートロック
- トイレ新規交換
- トランクルーム
- ペット飼育可
- 光ファイバー導入済
(共用部まで) - 公園至近
- 宅配ボックス
- 床暖房
- 浴室換気乾燥機
- 眺望良好
- 食器洗い機
- 駅近
- 駐輪場
物件概要
リノベーション内容
- 構造鉄筋コンクリート造地下1階地上29階建26階部分
- 間取り3LDK+WIC・FC・納戸・TR
- 専有面積75.06㎡(壁芯)
- バルコニー面積15.90 ㎡
- 土地権利所有権
- 用途地域商業地域
- 駐車場空無(37,000円~42,000円/月)
- ペット飼育可(犬猫合わせて2匹まで・規約有)
- 事務所使用不可
- フローリング新規貼替
- 壁・天井クロス新規貼替
- 建具・玄関収納等新規交換
- 田中工藝製洗面化粧台新規交換
- TOTO製洗浄便座付トイレ新規交換
- TOTO製ユニットバス新規交換(浴室換気乾燥機・ヘッドレスト・楽湯(肩湯・腰湯)・調光調色システム付)
- 田中工藝製システムキッチン新規交換(食器洗い機付)
- 照明器具新規設置
- エアコン一基新規設置
- 床暖房マット新規設置(LD)
- 給湯器新規交換(追焚式)…等










































