パークハウス平河町 1302号室|東京都千代田区
物件の価値を磨き上げた
リノベーション住宅
リノベーション住宅
パークハウス平河町 1302号室
オープンルーム
価格39,990万円
月額ローンのシミュレーション 価格改定
- 御屋敷町のー千代田区平河町ーアドレス
- 専有面積110m²超・東南角部屋・13階部分
- 2020年大規模修繕工事実施済
- 所在地 : 東京都千代田区平河町1-6-13
- 交通 : 東京メトロ有楽町線『麹町』駅徒歩4分
東京メトロ半蔵門線『半蔵門』駅徒歩4分
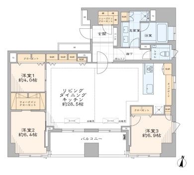
東京メトロ有楽町線・東京メトロ半蔵門線・東京メトロ南北線『永田町』駅徒歩6分 - 間取り : 3LDK+WIC・SIC
- 専有面積 : 111.09 ㎡
当物件を
スマホで
チェック!!
- 2駅利用可能
- TVモニター付インターフォン
- オートロック
- トイレ新規交換
- 光ファイバー導入済
(共用部まで) - 宅配ボックス
- 床暖房
- 浴室換気乾燥機
- 角部屋
- 買物便利
- 食器洗い機
- 駅近
オープンルーム
開催中
開催中
【開催日時】11/1(土)、11/2(日)、11/3(月祝)10:00~18:00 ※予約可能枠として11:00~、13:00~、15:00~、17:00~がございます。
ご希望の方は、ビデオ通話での内見が可能です。
自宅からバーチャル内覧会を開催中です。
オンラインで物件をご案内します。
オンラインで物件をご案内します。
お電話での問い合わせ(10:00-19:00)
物件概要
リノベーション内容
- 構造鉄筋コンクリート造地下1階地上14階建13階部分
- 間取り3LDK+WIC・SIC
- 専有面積111.09㎡(壁芯)
- バルコニー面積不明 ㎡
- 築年月2007(平成19)年9月
- 総戸数55戸
- 土地権利所有権
- 用途地域商業地域
- 現況空室
- 引渡日即可
- 駐車場空無(39,000円/月)
- ペット飼育不可(小動物のみ・犬猫不可)
- 事務所使用不可
- 管理費39,430円/月
- 修繕積立金20,000円/月
- 管理形態全部委託管理(日勤)
- 管理会社三菱地所コミュニティ㈱
- 施工会社戸田建設㈱
- 旧分譲会社三菱地所レジデンス
- 設備都市ガス・公営水道・本下水・EV・オートロック・宅配ボックス
- 備考駐輪場:空無(100円~200円/月)
バイク置場:空無(2,000円/月)
インターネット(つなぐネット・基本プランは無料・有料プランは要個別契約)
修繕積立金総額:124,490,032円(2024年7月現在)
固定資産税・都市計画税:277,600円(2025年度概算) - 修繕履歴2024年 1月 減圧弁交換・防犯カメラ更新
2020年 6月 大規模修繕工事
- フローリング新規貼替
- 給湯管新規交換(専有部)
- 建具・玄関収納等新規交換
- 田中工藝製洗面化粧台新規交換
- TOTO製洗浄便座付トイレ新規交換
- LIXIL製ユニットバス新規交換(浴室換気乾燥機付)
- 壁・天井クロス新規貼替
- 照明器具新規設置
- エアコン5基新規設置
- 床暖房マット新規交換(LD)
- 給湯器新規交換(追焚式)
- 田中工藝製システムキッチン新規交換(食器洗い機付)…等
Google Maps Loading...
- 所在地 : 東京都千代田区平河町1-6-13
- 交通 : 東京メトロ有楽町線『麹町』駅徒歩4分
東京メトロ半蔵門線『半蔵門』駅徒歩4分
東京メトロ有楽町線・東京メトロ半蔵門線・東京メトロ南北線『永田町』駅徒歩6分
自宅からバーチャル内覧会を開催中です。
オンラインで物件をご案内します。
オンラインで物件をご案内します。
お電話での問い合わせ(10:00-19:00)










































