ディアナコート代々木 201号室|東京都渋谷区
物件の価値を磨き上げた
リノベーション住宅
リノベーション住宅
ディアナコート代々木 201号室
オープンルーム
価格19,900万円
月額ローンのシミュレーション
オープンルーム
開催中
開催中
【開催日時】11/15(土)、11/16(日)10:00~18:00 ※予約可能枠として11:00~、13:00~、15:00~、17:00~がございます。
ご希望の方は、ビデオ通話での内見が可能です。
自宅からバーチャル内覧会を開催中です。
オンラインで物件をご案内します。
オンラインで物件をご案内します。
お電話での問い合わせ(10:00-19:00)
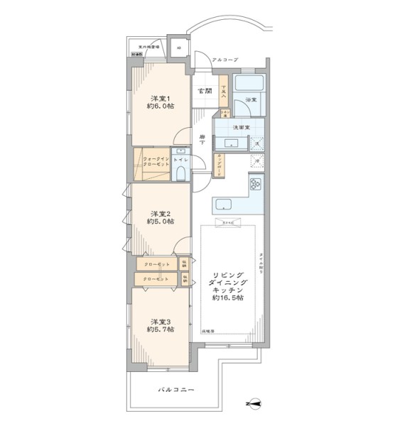
物件概要
リノベーション内容
- 構造鉄筋コンクリート造地下1階地上3階建2階部分
- 間取り3LDK+WIC
- 専有面積76.13㎡(壁芯)
- バルコニー面積9.45 ㎡
- 築年月2000(平成12)年11月
- 総戸数30戸
- 土地権利所有権
- 用途地域第一種低層住居専用地域
- 現況空室
- 引渡日即可
- 駐車場空有(30,000円~34,000円/月)※1
- ペット飼育可(体高30㎝以下の小型犬・小型猫(成獣時)規約有)
- 事務所使用不可
- 管理費19,000円/月
- 修繕積立金31,140円/月
- 管理形態全部委託管理(日勤)
- 管理会社三井不動産レジデンシャルサービス㈱
- 施工会社大成建設㈱
- 旧分譲会社㈱モリモト
- 設備都市ガス・公営水道・本下水・EV・オートロック・宅配ボックス
- 備考駐輪場:空有(300円・500円/月) ・ バイク置場:無
インターネット(NTT東日本フレッツ光)
CATV(イッツ・コミュニケーションズ)
修繕積立金総額:65,206,815円(2025年2月現在)
固定資産税・都市計画税:238,683円(2025年度概算)
地下トランクルーム専用使用権付※2
そ の 他 : 1,210円/月(トランクルーム維持積立使用料)
※1 全長5050mm×全幅1850mm×全高1550mm 重量2300kg以下
※2 幅1260mm×奥行1680mm×高さ2340mm - 修繕履歴2015年 インターホン設備更新工事
2014年 大規模修繕工事
- フローリング新規貼替
- 給水管・給湯管新規交換(専有部)
- 建具・玄関収納等新規交換
- オリジナル洗面化粧台新規交換
- LIXIL製洗浄便座付トイレ新規交換
- LIXIL製ユニットバス新規交換(浴室換気乾燥機付)
- オリジナルシステムキッチン新規交換(食器洗い機付)
- 壁・天井クロス新規貼替
- 照明器具新規設置
- エアコン1基新規設置
- 床暖房マット新規設置(LD)
- 給湯器新規交換(追焚式)…等
Google Maps Loading...
- 所在地 : 東京都渋谷区初台2-25-1
- 交通 : 東京メトロ千代田線『代々木公園』駅徒歩10分
小田急小田原線『代々木八幡』駅徒歩9分
京王線『初台』駅徒歩6分
自宅からバーチャル内覧会を開催中です。
オンラインで物件をご案内します。
オンラインで物件をご案内します。
お電話での問い合わせ(10:00-19:00)











































