ブリリアザ・タワー東京八重洲アベニュー 2612号室|東京都中央区
物件の価値を磨き上げた
リノベーション住宅
リノベーション住宅
ブリリアザ・タワー東京八重洲アベニュー 2612号室
オープンルーム
価格29,990万円
月額ローンのシミュレーション
- 安心の免震構造タワーレジデンス
- 全居室東京タワービュー
- 26階部分につき陽当たり・眺望良好
- 所在地 : 東京都中央区新川2-10-1
- 交通 : JR京葉線『八丁堀』駅徒歩1分
東京メトロ日比谷線『八丁堀』駅徒歩4分
東京メトロ東西線『茅場町』駅徒歩7分
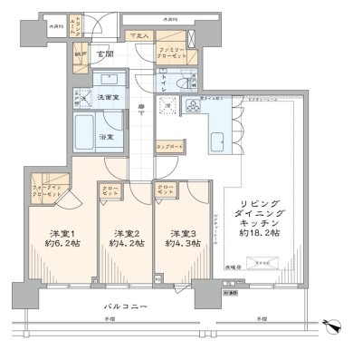
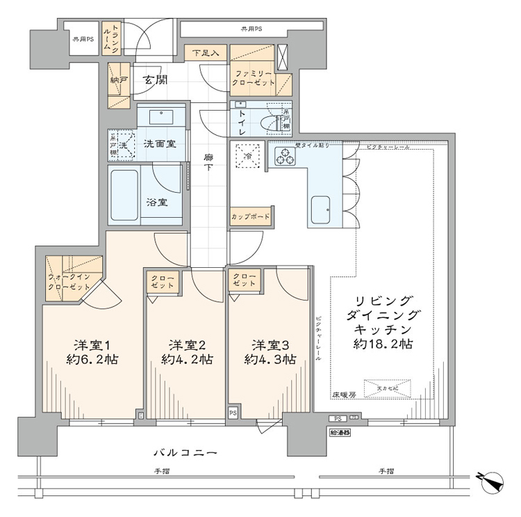
JR山手線・JR京浜東北線・他『東京』駅徒歩12分 - 間取り : 3LDK+WIC・FC・納戸・TR
- 専有面積 : 75.06 ㎡
当物件を
スマホで
チェック!!
- 24時間有人管理
- 2駅利用可能
- CATV導入済み
- TVモニター付インターフォン
- オートロック
- トイレ新規交換
- トランクルーム
- ペット飼育可
- 光ファイバー導入済
(共用部まで) - 公園至近
- 宅配ボックス
- 床暖房
- 浴室換気乾燥機
- 眺望良好
- 食器洗い機
- 駅近
- 駐輪場
オープンルーム
開催中
開催中
【開催日時】12/6(土)、12/7(日)10:00~18:00 ※予約可能枠として11:00~、13:00~、15:00~、17:00~がございます。
ご希望の方は、ビデオ通話での内見が可能です。
自宅からバーチャル内覧会を開催中です。
オンラインで物件をご案内します。
オンラインで物件をご案内します。
お電話での問い合わせ(10:00-19:00)
物件概要
リノベーション内容
- 構造鉄筋コンクリート造地下1階地上29階建26階部分
- 間取り3LDK+WIC・FC・納戸・TR
- 専有面積75.06㎡(壁芯)
- バルコニー面積15.90 ㎡
- 築年月2017(平成29)年9月
- 総戸数387戸
- 土地権利所有権
- 用途地域商業地域
- 現況空室
- 引渡日即可
- 駐車場空無(37,000円~42,000円/月)
- ペット飼育可(犬猫合わせて2匹まで・規約有)
- 事務所使用不可
- 管理費27,200円/月
- 修繕積立金11,560円/月
- 管理形態全部委託管理(日勤)
- 管理会社㈱東京建物アメニティサポート
- 施工会社三井住友建設㈱
- 旧分譲会社東京建物㈱・三菱地所レジデンス㈱
- 設備都市ガス・公営水道・本下水・EV・宅配ボックス・オートロック
- 備考バイク置場:空無(2,000円~3,000円/月)
駐輪場:空有(200円~350円/月)
インターネット(NTT東日本(任意)・つなぐネットコミュニケーションズ(全戸))
CATV(スカパーJSAT㈱)
修繕積立金総額:512,779,406円(2025年9月現在)
固定資産税・都市計画税:240,388円(2024年度概算)
そ の 他 : 1,627円/月(町会費230円・インターネット料1,397円/月)
※専有面積はトランクルーム面積0.49m²を含みます - 修繕履歴
- フローリング新規貼替
- 壁・天井クロス新規貼替
- 建具・玄関収納等新規交換
- 田中工藝製洗面化粧台新規交換
- TOTO製洗浄便座付トイレ新規交換
- TOTO製ユニットバス新規交換(浴室換気乾燥機・ヘッドレスト・楽湯(肩湯・腰湯)・調光調色システム付)
- 田中工藝製システムキッチン新規交換(食器洗い機付)
- 照明器具新規設置
- エアコン一基新規設置
- 床暖房マット新規設置(LD)
- 給湯器新規交換(追焚式)…等
Google Maps Loading...
- 所在地 : 東京都中央区新川2-10-1
- 交通 : JR京葉線『八丁堀』駅徒歩1分
東京メトロ日比谷線『八丁堀』駅徒歩4分
東京メトロ東西線『茅場町』駅徒歩7分
JR山手線・JR京浜東北線・他『東京』駅徒歩12分
自宅からバーチャル内覧会を開催中です。
オンラインで物件をご案内します。
オンラインで物件をご案内します。
お電話での問い合わせ(10:00-19:00)










































