ラヴィアンコート墨田業平 319号室|東京都墨田区
物件の価値を磨き上げた
リノベーション住宅
リノベーション住宅
ラヴィアンコート墨田業平 319号室
価格12,490万円
月額ローンのシミュレーション
- 半蔵門線・浅草線『押上』駅徒歩6分
- オリナス錦糸町まで徒歩10分
- 専有面積70m²×南向き×約12m²のバルコニー
- 所在地 : 東京都墨田区業平5-1-12
- 交通 : 東京メトロ半蔵門線・都営浅草線・京成押上線・東武スカイツリーライン『押上』駅徒歩6分
東京メトロ半蔵門線・JR総武線『錦糸町』駅徒歩15分
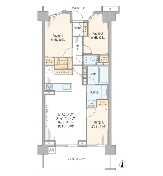
都営浅草線『本所吾妻橋』駅徒歩17分 - 間取り : 3LDK+WIC
- 専有面積 : 70.16 ㎡
当物件を
スマホで
チェック!!
- 2駅利用可能
- オートロック
- トイレ新規交換
- ペット飼育可
- 光ファイバー導入済
(共用部まで) - 公園至近
- 宅配ボックス
- 浴室換気乾燥機
- 食器洗い機
自宅からバーチャル内覧会を開催中です。
オンラインで物件をご案内します。
オンラインで物件をご案内します。
お電話での問い合わせ(10:00-19:00)
物件概要
リノベーション内容
- 構造鉄筋コンクリート造地上8階建3階部分
- 間取り3LDK+WIC
- 専有面積70.16㎡(壁芯)
- バルコニー面積12.00 ㎡
- 築年月2009(平成21)年11月
- 総戸数165戸
- 土地権利所有権
- 用途地域準工業地域
- 現況空室
- 引渡日即可
- 駐車場空無(21,000円~28,000円/月・抽選)
- ペット飼育可(2匹まで・規約有)
- 事務所使用不可
- 管理費12,500円/月
- 修繕積立金6,800円/月
- 管理形態全部委託管理(日勤)
- 管理会社ホームライフ管理㈱
- 施工会社長谷工コーポレーション
- 旧分譲会社長谷工コーポレーション・日本土地建物販売
- 設備公営水道・本下水・オール電化・EV・オートロック・宅配ボックス
- 備考アルコーブ面積 : 4.46m²
駐輪場:空無(200円~400円/月)
バイク置場:空無(2,000円~3,000円/月)
インターネット(大和ライフネクスト)
光回線テレビ(スカパー光サービス)
修繕積立金総額:440,796,959円(2025年10月現在)
固定資産税・都市計画税:125,867円(2025年度概算)
そ の 他 : 1,180円/月(町会費300円・インターネット料880円) - 修繕履歴2015年 鉄部塗装工事
- フローリング新規貼替
- 壁・天井クロス新規貼替
- 給水管・給湯管新規交換(専有部)
- 建具・玄関収納等新規交換
- LIXIL製洗面化粧台新規交換
- 洗浄便座付トイレ新規交換
- LIXIL製ユニットバス新規交換(浴室換気乾燥機付)
- LIXIL製システムキッチン新規交換(食器洗い機付)
- 照明器具新規設置
- エアコン1基新規設置
- 電気温水器新規交換(追焚式)…等
Google Maps Loading...
- 所在地 : 東京都墨田区業平5-1-12
- 交通 : 東京メトロ半蔵門線・都営浅草線・京成押上線・東武スカイツリーライン『押上』駅徒歩6分
東京メトロ半蔵門線・JR総武線『錦糸町』駅徒歩15分
都営浅草線『本所吾妻橋』駅徒歩17分
自宅からバーチャル内覧会を開催中です。
オンラインで物件をご案内します。
オンラインで物件をご案内します。
お電話での問い合わせ(10:00-19:00)









































