運命のリノベーション
物件と出会える場所
物件と出会える場所
[過去取扱物件]
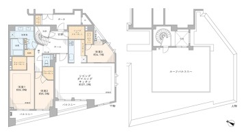
最上階・東南西角部屋 東京タワー・富士山ビュー
- 所在地 : 東京都渋谷区
- 交通 : JR山手線・東京メトロ日比谷線『恵比寿』駅徒歩5分
- 間取り : 3LDK+3WIC・SIC
- 専有面積 : 126.82 ㎡
- 2駅利用可能
- オートロック
- トイレ新規交換
- ペット飼育可
- ルーフバルコニー
- 光ファイバー導入済
(共用部まで) - 床暖房
- 最上階
- 浴室換気乾燥機
- 眺望良好
- 角部屋
- 買物便利
- 食器洗い機
- 駐輪場
物件概要
リノベーション内容
- 構造鉄骨鉄筋コンクリート造地下1階地上15階建15階部分
- 間取り3LDK+3WIC・SIC
- 専有面積126.82㎡(壁芯)
- バルコニー面積9.98 ㎡
- 土地権利所有権
- 用途地域商業地域・第一種住居地域
- 駐車場空無(35,000円/月)
- ペット飼育可(体長50㎝以内・1匹まで・規約有)
- 事務所使用不可
- フローリング新規貼替
- 建具新規交換
- 田中工藝製洗面化粧台新規交換
- LIXIL製洗浄便座付トイレ新規交換
- LIXIL製ユニットバス新規交換(浴室換気乾燥機付)
- 田中工藝製システムキッチン新規交換(食器洗浄乾燥機付)
- 壁・天井クロス新規貼替
- 照明器具新規設置
- エアコン2基新規設置
- 床暖房マット新規設置
- 給湯器新規交換(追焚式)…等










































