 
    運命のリノベーション
物件と出会える場所
    物件と出会える場所
[過去取扱物件]
ユナイテッドアローズ社監修リノベーション!
- 所在地 : 東京都中野区
- 交通 : 東京メトロ丸ノ内線・都営大江戸線『中野坂上』駅徒歩3分
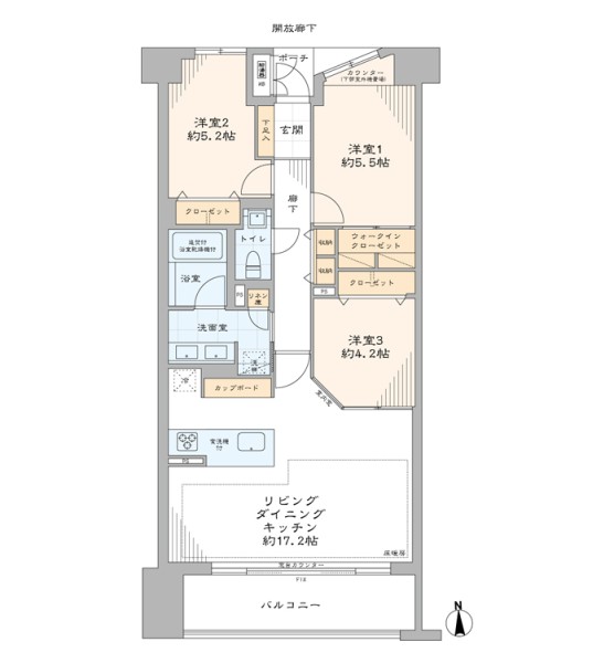
- 間取り : 3LDK+WIC
- 専有面積 : 75.09 ㎡
- 2駅利用可能
- CATV導入済み
- TVモニター付インターフォン
- オートロック
- トイレ新規交換
- ペット飼育可
- 光ファイバー導入済
 (共用部まで)
- 宅配ボックス
- 床暖房
- 浄水器
- 浴室換気乾燥機
- 眺望良好
- 緑多い住環境
- 買物便利
- 食器洗い機
- 駅近
- 駐車場
- 駐輪場
物件概要
      リノベーション内容
    - 構造鉄筋コンクリート造地下1階地上5階建2階部分
- 間取り3LDK+WIC
- 専有面積75.09㎡(壁芯)
- バルコニー面積10.62 ㎡
- 土地権利所有権
- 用途地域第一種中高層住居専用地域・商業地域
- 駐車場空有(20,000円~34,000円/月)※高さ2,000㎜まで・その他サイズ制限有
- ペット飼育可(小型犬・猫・兎、1匹まで、細則有)
- 事務所使用不可
- フローリング新規貼替
- 給水管・給湯管新規交換(専有部)
- 建具・玄関収納等新規交換
- オリジナル洗面化粧台新規交換
- LIXIL製洗浄便座付トイレ新規交換
- LIXIL製ユニットバス新規交換(浴室換気乾燥機付)
- オリジナルシステムキッチン新規交換(食器洗浄乾燥機付)
- 壁・天井クロス新規貼替
- 照明器具新規設置
- エアコン一基新規設置
- 床暖房マット新規設置
- 給湯器新規交換(追焚式)…等











































