運命のリノベーション
物件と出会える場所
物件と出会える場所
[過去取扱物件]
約46m²の大型ルーフバルコニー付
- 所在地 : 東京都品川区
- 交通 : JR山手線・東京メトロ南北線・他2線『目黒』駅徒歩5分
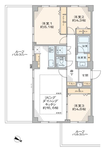
- 間取り : 3LDK
- 専有面積 : 78.75 ㎡
- 2駅利用可能
- CATV導入済み
- TVモニター付インターフォン
- オートバス
- トイレ新規交換
- ペット飼育可
- ルーフバルコニー
- 両面バルコニー
- 光ファイバー導入済
(共用部まで) - 宅配ボックス
- 床暖房
- 最上階
- 浄水器
- 浴室換気乾燥機
- 眺望良好
- 角部屋
- 買物便利
- 食器洗い機
- 駐車場
- 駐輪場
物件概要
リノベーション内容
- 構造鉄筋コンクリート造地上6階建6階部分
- 間取り3LDK
- 専有面積78.75㎡(壁芯)
- バルコニー面積46.22 (ルーフバルコニー面積) ㎡
- 土地権利所有権
- 用途地域商業地域
- 駐車場空無(27,000円/月)
- ペット飼育可(2匹まで・規約有)
- 事務所使用不可
- フローリング新規貼替
- 給湯管新規交換(専有部)
- 建具・玄関収納等新規交換
- TOTO製洗面化粧台新規交換
- TOTO製洗浄便座付トイレ新規交換
- LIXIL製ユニットバス新規交換(浴室換気乾燥機付)
- LIXIL製システムキッチン新規交換(食器洗浄乾燥機付)
- TVモニター付インターホン新規交換
- 壁・天井クロス新規貼替
- 照明器具新規設置
- エアコン一基新規設置
- 床暖房マット新規設置
- 給湯器新規交換(追焚式)…等










































