運命のリノベーション
物件と出会える場所
物件と出会える場所
[過去取扱物件]
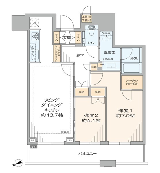
収納豊富な2LDK・WIC付き LDに床暖房
- 所在地 : 東京都品川区
- 交通 : JR山手線・東京メトロ南北線・都営三田線・東急目黒線
『目黒』駅徒歩3分 - 間取り : 2LDK+WIC
- 専有面積 : 59.43 ㎡
- 2駅利用可能
- CATV導入済み
- オートロック
- トイレ新規交換
- トランクルーム
- ペット飼育可
- 光ファイバー導入済
(共用部まで) - 宅配ボックス
- 床暖房
- 買物便利
- 駅近
- 駐輪場
物件概要
リノベーション内容
- 構造鉄筋コンクリート・鉄骨造地下2階地上38階建18階部分
- 間取り2LDK+WIC
- 専有面積59.43㎡(壁芯)
- バルコニー面積9.88 ㎡
- 土地権利所有権
- 用途地域第一種住居地域
- 駐車場空無(41,000円~63,000円/月)
- ペット飼育可(規約有)
- 事務所使用不可
- ガラストップコンロ新規交換
- ディスポーザー新規交換
- TOTO製洗浄便座付トイレ新規交換
- 壁・天井クロス新規貼替
- 照明器具一部新規設置
- エアコン一基新規設置
- 給湯器新規交換(追焚式)…等











































