運命のリノベーション
物件と出会える場所
物件と出会える場所
[過去取扱物件]
ビッグターミナル『池袋』駅徒歩8分
- 所在地 : 東京都豊島区
- 交通 : JR山手線・JR埼京線・東京メトロ副都心線・東京メトロ有楽町線
東京メトロ丸ノ内線・東武東上線『池袋』駅徒歩8分
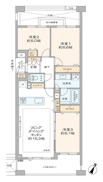
JR山手線『目白』駅徒歩13分 - 間取り : 3LDK
- 専有面積 : 73.31 ㎡
- 2駅利用可能
- TVモニター付インターフォン
- オートロック
- トイレ新規交換
- ペット飼育可
- 光ファイバー導入済
(共用部まで) - 宅配ボックス
- 床暖房
- 最上階
- 浴室換気乾燥機
- 眺望良好
- 角部屋
- 買物便利
- 食器洗い機
- 駐車場
- 駐輪場
物件概要
リノベーション内容
- 構造鉄筋コンクリート造地上5階建5階部分
- 間取り3LDK
- 専有面積73.31㎡(壁芯)
- バルコニー面積10.72 ㎡
- 土地権利所有権
- 用途地域第一種中高層住居専用地域
- 駐車場空有(24,000円~28,000円/月)※1
- ペット飼育可(原則2匹まで・成長時抱きかかえられるサイズ・使用細則有)
- 事務所使用不可
- フローリング新規貼替
- 給水管・給湯管新規交換(専有部)
- 建具・玄関収納等新規交換
- LIXIL製洗面化粧台新規交換
- 壁・天井クロス新規貼替
- 照明器具新規設置
- エアコン一基新規設置
- TOTO製洗浄便座付トイレ新規交換
- TOTO製ユニットバス新規交換(浴室換気乾燥機付)
- トクラス製システムキッチン新規交換(食器洗浄乾燥機付)
- 給湯器新規交換(追焚式)…等










































