運命のリノベーション
物件と出会える場所
物件と出会える場所
[過去取扱物件]
羨望の地ー千代田区六番町ー
- 所在地 : 東京都千代田区
- 交通 : JR中央本線・東京メトロ丸ノ内線『四ツ谷』駅徒歩5分
JR中央・総武緩行線『市ヶ谷』駅徒歩5分
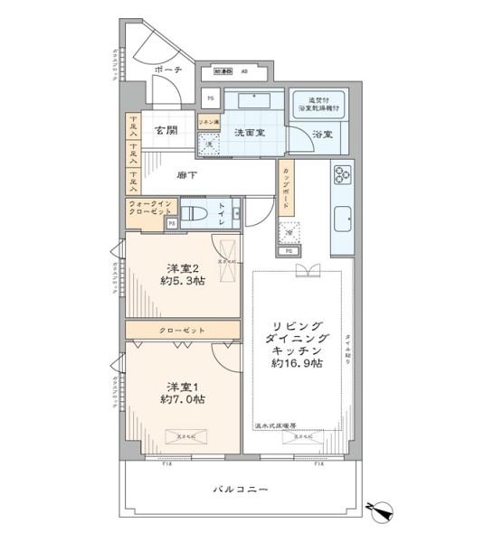
東京メトロ有楽町線『麹町』駅徒歩5分 - 間取り : 2LDK
- 専有面積 : 70.12 ㎡
- 2駅利用可能
- CATV導入済み
- オートロック
- 光ファイバー導入済
(共用部まで) - 公園至近
- 宅配ボックス
- 床暖房
- 最上階
- 眺望良好
- 角部屋
- 駐車場
- 駐輪場
物件概要
リノベーション内容
- 構造鉄骨鉄筋コンクリート造地下1階地上8階建8階部分
- 間取り2LDK
- 専有面積70.12㎡(壁芯)
- バルコニー面積13.5 ㎡
- 土地権利所有権
- 用途地域第一種住居地域
- 駐車場空有(43,000円~45,000円/月)※1
- ペット飼育不可
- 事務所使用不可
- タンクレストイレ新規交換
- 洗濯パン新規交換
- ガラストップコンロ新規交換
- (ユニットバス部品)洗い場水栓・シャワーホース・シャワーヘッド・棚
- 壁・天井クロス新規貼替
- ダウンライト新規設置
- ランドリーパイプ・手すり・鏡・タオル掛け新規交換…等











































