運命のリノベーション
物件と出会える場所
物件と出会える場所
[過去取扱物件]
2024年築 230戸の免震タワーレジデンス
- 所在地 : 東京都豊島区
- 交通 : 東京メトロ丸ノ内線・東京メトロ副都心線『池袋』駅徒歩5分
JR山手線『池袋』駅徒歩10分
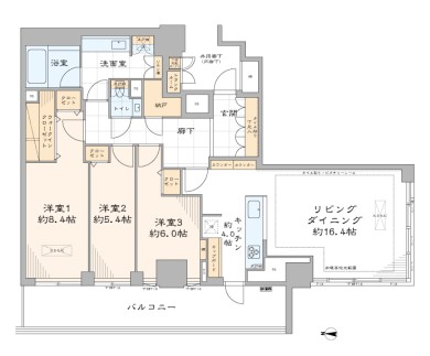
東京メトロ有楽町線『要町』駅徒歩3分 - 間取り : 3LDK+WIC・納戸
- 専有面積 : 101.56 ㎡
- 24時間有人管理
- 2駅利用可能
- CATV導入済み
- オートロック
- トイレ新規交換
- トランクルーム
- ペット飼育可
- 光ファイバー導入済
(共用部まで) - 宅配ボックス
- 眺望良好
- 角部屋
- 駅近
- 駐車場
- 駐輪場
物件概要
リノベーション内容
- 構造鉄筋コンクリート造地下1階地上30階建29階部分
- 間取り3LDK+WIC・納戸
- 専有面積101.56㎡(壁芯)
- バルコニー面積17.86 ㎡
- 土地権利所有権
- 用途地域商業地域・第一種中高層住居専用地域
- 駐車場セダン区画のみ空有(33,000円/月・ 高さ1550㎜)
- ペット飼育可(2匹まで・飼育細則有)
- 事務所使用不可
- 洋室(1・2・3)フローリング新規貼替
- 壁・天井クロス新規貼替
- 洋室(1・2・3)建具新規交換
- TOTO製洗浄便座付トイレ新規交換
- LD・玄関壁タイル新規貼替
- 洋室1天カセエアコン新規交換(LDは既存)
- 照明器具新規設置
- ※1LDK→3LDKに間取変更…等



