運命のリノベーション
物件と出会える場所
物件と出会える場所
[過去取扱物件]
大川と大阪城を臨む北東角部屋
- 所在地 : 大阪府大阪市中央区
- 交通 : 大阪メトロ堺筋線『北浜』駅徒歩1分
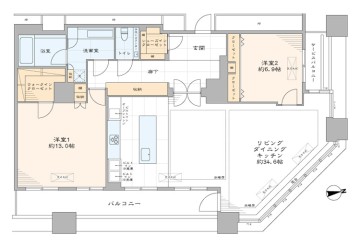
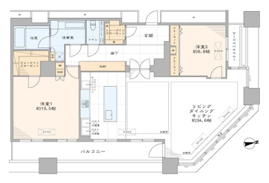
京阪本線『北浜』駅徒歩3分 - 間取り : 2LDK+WIC+SIC
- 専有面積 : 130.89 ㎡
- 24時間有人管理
- 2駅利用可能
- CATV導入済み
- IHクッキングヒーター
- TVモニター付インターフォン
- オートロック
- トイレ新規交換
- ペット飼育可
- 光ファイバー導入済
(共用部まで) - 外観タイル貼
- 宅配ボックス
- 床暖房
- 浄水器
- 浴室換気乾燥機
- 眺望良好
- 角部屋
- 買物便利
- 食器洗い機
- 駅近
- 駐車場
- 駐輪場
物件概要
リノベーション内容
- 構造鉄筋コンクリート・鉄骨・鉄骨鉄筋コンクリート造地下1階地上54階建50階部分
- 間取り2LDK+WIC+SIC
- 専有面積130.89㎡(壁芯)
- バルコニー面積13.82 ㎡
- 土地権利所有権
- 用途地域商業地域
- 駐車場空有(35,000円~70,000円/月)
- ペット飼育可(犬又は猫、合わせて2匹まで)
- 事務所使用不可
- フローリング新規貼替
- 壁・天井クロス新規貼替
- 田中工藝洗面化粧台新規交換
- TOTO製洗浄便座付トイレ新規交換
- LIXIL製追焚機能(循環式)付ユニットバス新規交換(浴室換気乾燥機付)
- 田中工藝製システムキッチン新規交換(食器洗い機・オーブン付)
- ビルトイン冷蔵庫・ビルトイン冷凍庫新規設置
- 建具・玄関収納等新規交換
- 照明器具新規設置※1
- エアコン5基新規交換
- ディスポーザー新規交換…等
- ※1シーリングライトは、販売には含まれません







































