運命のリノベーション
物件と出会える場所
物件と出会える場所
[過去取扱物件]
3路線2駅利用可『堺筋本町』駅徒歩1分
- 所在地 : 大阪府大阪市中央区
- 交通 : Osaka Metro堺筋線・中央線『堺筋本町』駅徒歩1分
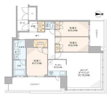
Osaka Metro御堂筋線『本町』駅徒歩9分 - 間取り : 3LDK+WIC・SIC
- 専有面積 : 88.30 ㎡
- 2駅利用可能
- CATV導入済み
- TVモニター付インターフォン
- オートロック
- ペット飼育可
- 両面バルコニー
- 光ファイバー導入済
(共用部まで) - 外観タイル貼
- 宅配ボックス
- 床暖房
- 浄水器
- 浴室換気乾燥機
- 眺望良好
- 角部屋
- 買物便利
- 食器洗い機
- 駅近
- 駐車場
- 駐輪場
物件概要
リノベーション内容
- 構造鉄筋コンクリート造地上37階建24階部分
- 間取り3LDK+WIC・SIC
- 専有面積88.30㎡(壁芯)
- バルコニー面積19.73 ㎡
- 土地権利所有権
- 用途地域商業地域
- 駐車場空有(29,000円~37,000円/月)
- ペット飼育可(使用細則あり、犬猫あわせて2匹まで)
- 事務所使用不可






































