運命のリノベーション
物件と出会える場所
物件と出会える場所
[過去取扱物件]
10階部分/北東角住戸 駐輪場無償
- 所在地 : 兵庫県神戸市中央区
- 交通 : JR東海道本線『三ノ宮』駅徒歩10分
JR東海道本線『元町』駅徒歩8分
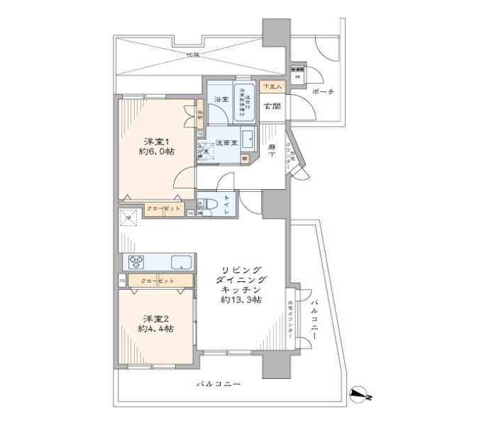
阪急神戸線『神戸三宮』駅徒歩7分 - 間取り : 2LDK
- 専有面積 : 55.11 ㎡
- 2駅利用可能
- CATV導入済み
- TVモニター付インターフォン
- オートロック
- トイレ新規交換
- 両面バルコニー
- 事務所使用可
- 光ファイバー導入済
(共用部まで) - 外観タイル貼
- 宅配ボックス
- 床暖房
- 浄水器
- 浴室換気乾燥機
- 眺望良好
- 角部屋
- 買物便利
- 食器洗い機
- 駐輪場
物件概要
リノベーション内容
- 構造鉄骨鉄筋コンクリート造地下1階地上14階建10階部分
- 間取り2LDK
- 専有面積55.11㎡(壁芯)
- バルコニー面積16.86 ㎡
- 土地権利所有権
- 用途地域商業地域
- 駐車場無(分譲のみ)
- ペット飼育不可
- 事務所使用可(使用細則参照)
- フローリング貼替
- 給湯器交換
- 建具・玄関収納等交換
- LIXIL製洗面化粧台交換
- TOTO製洗浄便座付トイレ交換
- TOTO製追焚機能付ユニットバス交換(浴室換気乾燥機付)
- 壁・天井クロス貼替
- エアコン一基設置
- 床暖房設置
- LIXIL製システムキッチン交換(食器洗浄乾燥機付)…等



































