あべのグラントゥール 3107号室|大阪府大阪市
物件の価値を磨き上げた
リノベーション住宅
リノベーション住宅
あべのグラントゥール 3107号室
価格12,990万円
月額ローンのシミュレーション 価格改定
- あべのキューズモール・あべのハルカス・近鉄百貨店が徒歩圏内
- 5路線利用可・OsakaMetro御堂筋線『天王寺』駅徒歩5分
- 令和6年共用部大規模修繕工事実施済み
- 所在地 : 大阪府大阪市阿倍野区阿倍野筋1-7-20
- 交通 : OsakaMetro御堂筋線『天王寺』駅徒歩5分
OsakaMetro谷町線『阿倍野』駅徒歩5分
JR環状線『天王寺』駅徒歩7分
近鉄南大阪線『大阪阿部野橋』駅徒歩7分
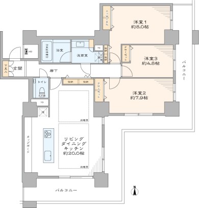
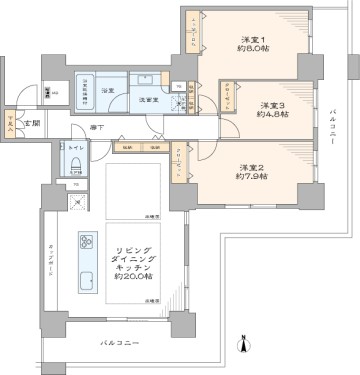
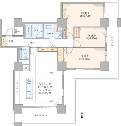
阪堺電気軌道上町線『天王寺駅前』駅徒歩8分 - 間取り : 3LDK
- 専有面積 : 93.32 ㎡
当物件を
スマホで
チェック!!
- 2駅利用可能
- CATV導入済み
- TVモニター付インターフォン
- オートロック
- トイレ新規交換
- ペット飼育可
- 光ファイバー導入済
(共用部まで) - 外観タイル貼
- 宅配ボックス
- 床暖房
- 浄水器
- 浴室換気乾燥機
- 眺望良好
- 角部屋
- 買物便利
- 食器洗い機
- 駐車場
- 駐輪場
物件概要
リノベーション内容
- 構造鉄筋コンクリート・鉄骨造地下1階地上40階建31階部分
- 間取り3LDK
- 専有面積93.32㎡(壁芯)
- バルコニー面積33.56 ㎡
- 築年月2004(平成16)年9月
- 総戸数401戸
- 土地権利所有権
- 用途地域商業地域
- 現況空室
- 引渡日即可
- 駐車場空有(20,000円~29,000円/月)
- ペット飼育可(犬または猫1匹まで、ペット飼育規則あり)
- 事務所使用不可
- 管理費20,440円/月
- 修繕積立金35,270円/月
- 管理形態全部委託管理(日勤)
- 管理会社㈱長谷工コミュニティ
- 施工会社竹中・東急・長谷工・松村特定建設工事共同企業体
- 旧分譲会社大阪市
- 設備都市ガス・公営水道・本下水・EV・オートロック・宅配ボックス
- 備考駐輪場:空有(100円/月)
バイク置場:空有(2,000円/月)
トランクルーム:空無(670円~1,270円/月)
インターネット(オプテージ、J:COM、ソフトバンク、KDDI、NTT)
CATV(J:COM)
住宅修繕積立金総額:194,233,478円(R7年3月現在)
全体修繕積立金総額:123,252,271円(R7年3月現在)
固定資産税・都市計画税:218,169円(R8年度概算)
町会費 : 200円/月(任意) - 修繕履歴令和6年2月 大規模修繕工事
- フローリング新規貼替
- 壁・天井クロス新規貼替
- 建具・玄関収納等新規交換
- LIXIL製洗面化粧台新規交換
- TOTO製洗浄便座付トイレ新規交換
- TOTO製追焚機能(循環式)付ユニットバス新規交換(浴室換気乾燥機付)
- 田中工藝製システムキッチン新規交換(食器洗い機付)
- 照明器具新規設置 ※1
- 給湯器新規交換 ※2
- 床暖房マット新規交換
- エアコン一基新規設置…等
- ※1 シーリングライトは、販売には含まれません
- ※2 給湯器の新規交換は設備の納品後になります
Google Maps Loading...
- 所在地 : 大阪府大阪市阿倍野区阿倍野筋1-7-20
- 交通 : OsakaMetro御堂筋線『天王寺』駅徒歩5分
OsakaMetro谷町線『阿倍野』駅徒歩5分
JR環状線『天王寺』駅徒歩7分
近鉄南大阪線『大阪阿部野橋』駅徒歩7分
阪堺電気軌道上町線『天王寺駅前』駅徒歩8分




































