運命のリノベーション
物件と出会える場所
物件と出会える場所
[過去取扱物件]
みなとみらいエリアの中心に佇む
- 所在地 : 神奈川県横浜市西区
- 交通 : みなとみらい線『みなとみらい』駅徒歩6分
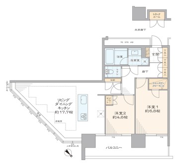
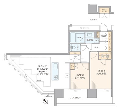
みなとみらい線『新高島』駅徒歩7分 - 間取り : 2LDK+WIC
- 専有面積 : 66.96 ㎡
- 24時間有人管理
- CATV導入済み
- オートロック
- トランクルーム
- ペット飼育可
- 光ファイバー導入済
(共用部まで) - 宅配ボックス
- 浴室換気乾燥機
- 駐車場
- 駐輪場
物件概要
リノベーション内容
- 構造鉄筋コンクリート・鉄骨造地下1階地上30階建9階部分
- 間取り2LDK+WIC
- 専有面積66.96㎡(壁芯)
- バルコニー面積13.33 ㎡
- 土地権利所有権
- 用途地域商業地域
- 駐車場空有(27,000円~30,000円/月)
- ペット飼育可(飼育細則有)
- 事務所使用不可
- フローリング新規貼替
- 建具・玄関収納等新規交換
- LIXIL製洗面化粧台新規交換
- TOTO製洗浄便座付トイレ新規交換
- TOTO製追焚機能付ユニットバス新規交換(浴室換気乾燥機付)
- 田中工藝製システムキッチン新規交換(食器洗浄乾燥機付)
- ディスポーザー新規交換
- 壁・天井クロス新規貼替
- ヒーツ熱交換器新規交換(追焚式)
- 照明器具新規設置
- 床暖房マット新規交換…等










































