運命のリノベーション
物件と出会える場所
物件と出会える場所
[過去取扱物件]
新宿御苑隣接・都心にして緑景の美に包まれる私邸
- 所在地 : 東京都新宿区
- 交通 : 東京メトロ丸ノ内線『新宿御苑前』駅徒歩6分
東京メトロ丸ノ内線『四谷三丁目』駅徒歩7分
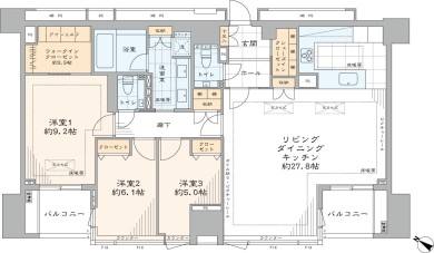
JR総武線『千駄ヶ谷』駅徒歩13分 - 間取り : 3LDK+WIC・SIC
- 専有面積 : 122.15 ㎡
- 2駅利用可能
- CATV導入済み
- TVモニター付インターフォン
- オートロック
- トイレ新規交換
- ペット飼育可
- 光ファイバー導入済
(共用部まで) - 公園至近
- 宅配ボックス
- 床暖房
- 浴室換気乾燥機
- 眺望良好
- 緑多い住環境
- 買物便利
- 食器洗い機
- 駐車場
- 駐輪場
物件概要
リノベーション内容
- 構造鉄筋コンクリート造地下2階地上14階建9階部分
- 間取り3LDK+WIC・SIC
- 専有面積122.15㎡(壁芯)
- バルコニー面積10.36 ㎡
- 土地権利所有権
- 用途地域商業地域
- 駐車場空有(33,000円~40,000円/月)※1
- ペット飼育可(体長50㎝程度までの犬猫2匹まで・細則有)
- 事務所使用不可
- フローリング新規貼替
- 建具・玄関収納等新規交換
- 田中工藝製洗面化粧台新規交換
- TOTO製洗浄便座付トイレ新規交換
- LIXIL製ユニットバス新規交換(浴室換気乾燥機付)
- 田中工藝システムキッチン新規交換(食器洗い機付)
- 壁・天井クロス新規貼替
- 照明器具新規設置
- エアコン新規設置
- 床暖房マット新規交換
- 給湯器新規交換(追焚式)…等










































