アバンエスパス烏丸御池 702号室|京都府京都市
物件の価値を磨き上げた
リノベーション住宅
リノベーション住宅
アバンエスパス烏丸御池 702号室
価格18,990万円
月額ローンのシミュレーション
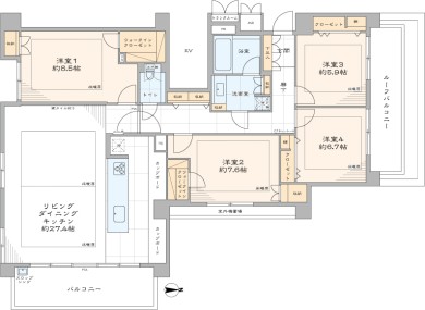
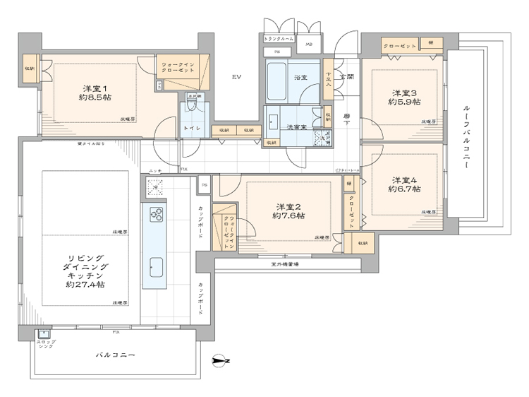
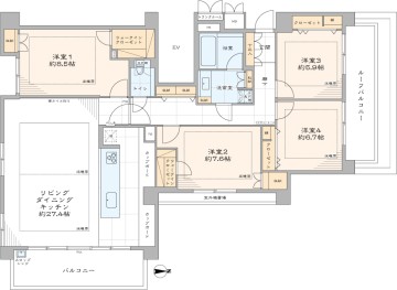
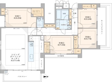
- 二面採光で明るい約27.4帖のLDK
- 『烏丸御池』駅徒歩4分/ 3沿線利用可能な立地
- 五山の送り火(左大文字)を臨む眺望
- 所在地 : 京都府京都市中京区両替町通二条下る金吹町476
- 交通 : 地下鉄烏丸線・東西線『烏丸御池』駅徒歩4分
地下鉄烏丸線『丸太町』駅徒歩5分
阪急京都線『烏丸』駅徒歩14分 - 間取り : 4LDK+2WIC
- 専有面積 : 129.15 ㎡
当物件を
スマホで
チェック!!
- 2駅利用可能
- TVモニター付インターフォン
- オートロック
- トイレ新規交換
- トランクルーム
- ペット飼育可
- ルーフバルコニー
- 両面バルコニー
- 光ファイバー導入済
(共用部まで) - 外観タイル貼
- 宅配ボックス
- 床暖房
- 最上階
- 浄水器
- 浴室換気乾燥機
- 眺望良好
- 角部屋
- 買物便利
- 食器洗い機
- 駐車場
- 駐輪場
物件概要
リノベーション内容
- 構造鉄筋コンクリート造地上7階建7階部分
- 間取り4LDK+2WIC
- 専有面積129.15㎡(壁芯)
- バルコニー面積19.85 ㎡
- 築年月2007(平成19)年10月
- 総戸数26戸
- 土地権利所有権
- 用途地域近隣商業地域
- 現況空室
- 引渡日即可
- 駐車場空有(21,000円~23,000円/月)
- ペット飼育可(犬・猫合わせて2匹まで、飼育細則有)
- 事務所使用不可
- 管理費32,150円/月
- 修繕積立金23,250円/月
- 管理形態全部委託管理(日勤)
- 管理会社㈱エスホールディングス
- 施工会社㈱大林組
- 旧分譲会社イー・スペース㈱
- 設備都市ガス・公営水道・本下水・EV・オートロック・宅配ボックス
- 備考ポーチ面積 : 1.36m²
トランクルーム面積 : 0.50m²(専有面積に含む)
駐輪場:空有(120円/月、登録シール代200円/台)
バイク置場:空無(500円/月)
インターネット(NTTメディアサプライ)
修繕積立金総額:47,504,726円(R7年5月現在)
固定資産税・都市計画税:269,378円(R8年度概算) - 修繕履歴令和 5年 2月 防犯カメラシステム更新工事
- フローリング新規貼替
- 壁・天井クロス新規貼替
- 建具・玄関収納等新規交換
- TOTO製洗面化粧台新規交換
- TOTO製洗浄便座付タンクレストイレ新規交換
- TOTO製追焚機能(循環式)付ユニットバス新規交換(浴室換気乾燥機付)
- 田中工藝製システムキッチン新規交換(食器洗い機付き)
- 照明器具新規設置※1
- 床暖房マット新規交換
- エアコン一基新規設置
- 給湯器新規交換※2…等
- ※1シーリングライトは、販売には含まれません
- ※2給湯器の新規交換は設備の納品後になります
Google Maps Loading...
- 所在地 : 京都府京都市中京区両替町通二条下る金吹町476
- 交通 : 地下鉄烏丸線・東西線『烏丸御池』駅徒歩4分
地下鉄烏丸線『丸太町』駅徒歩5分
阪急京都線『烏丸』駅徒歩14分
自宅からバーチャル内覧会を開催中です。
オンラインで物件をご案内します。
オンラインで物件をご案内します。
お電話での問い合わせ(10:00-19:00)
京都市の物件
-
- ファミールガーデン二条駅前
4LDK+WIC/ 103.19㎡/京都府京都市中京区壬生天池町1
- ファミールガーデン二条駅前
-
- サンマンションドゥーシェ室町冷泉町
4LDK+3WIC+SIC/ 141.55㎡/京都府京都市中京区室町通二条上る冷泉町58
- サンマンションドゥーシェ室町冷泉町
-
- コスモシティ御池富小路
3LDK+WIC/ 89.72㎡/京都府京都市中京区富小路通御池下る松下町135-3
- コスモシティ御池富小路
-
- イーグルコート京都河原町
3LDK/ 70.61㎡/京都府京都市下京区西木屋町通松原上る二丁目天満町266
- イーグルコート京都河原町








































