コスモシティ御池富小路 1111号室|京都府京都市
物件の価値を磨き上げた
リノベーション住宅
リノベーション住宅
コスモシティ御池富小路 1111号室
価格17,990万円
月額ローンのシミュレーション 価格改定
- 2沿線利用可 / 『京都市役所前』駅徒歩2 分
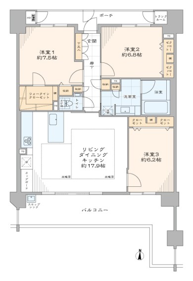
- 約17.9帖の広々LDK(LD床暖房あり)
- 専有面積89m²の3LDK 全居室6帖以上
- 所在地 : 京都府京都市中京区富小路通御池下る松下町135-3
- 交通 : 地下鉄東西線『京都市役所前』駅徒歩2分
地下鉄烏丸線・東西線『烏丸御池』駅徒歩5分 - 間取り : 3LDK+WIC
- 専有面積 : 89.72 ㎡
当物件を
スマホで
チェック!!
- 2駅利用可能
- CATV導入済み
- TVモニター付インターフォン
- オートロック
- トイレ新規交換
- トランクルーム
- 光ファイバー導入済
(共用部まで) - 外観タイル貼
- 宅配ボックス
- 床暖房
- 浄水器
- 浴室換気乾燥機
- 眺望良好
- 買物便利
- 食器洗い機
- 駅近
- 駐車場
- 駐輪場
物件概要
リノベーション内容
- 構造鉄骨鉄筋コンクリート造地上15階建11階部分
- 間取り3LDK+WIC
- 専有面積89.72㎡(壁芯)
- バルコニー面積20.51 ㎡
- 築年月2003(平成15)年2月
- 総戸数166戸
- 土地権利所有権
- 用途地域商業地域
- 現況空室
- 引渡日即可
- 駐車場空有(24,000円~39,000円/月)
- ペット飼育不可
- 事務所使用不可
- 管理費10,700円/月
- 修繕積立金16,600円/月
- 管理形態全部委託管理(日勤)
- 管理会社大和ライフネクスト㈱
- 施工会社鹿島建設㈱、石黒建設㈱
- 旧分譲会社㈱リクルートコスモス
- 設備都市ガス・公営水道・本下水・EV・オートロック・宅配ボックス
- 備考駐輪場:空有(50~500円/月)
バイク置場:空有(1,000円/月)
インターネット(UCOM、KDDI、NTT、オプテージ)
CATV(J:COM)
修繕積立金総額:231,992,455円(R7年6月現在)
トランクルーム面積 : 1.08m²(専有面積に含む)
ポーチ面積 : 6.74m²
町 会 費 : 500円/月
固定資産税・都市計画税:192,219円(R8年度概算)
修繕積立金 : 16,600円/月※1
※1 2030年3月より月額19,900円、2035年3月より月額24,000円に
修繕積立金の改定予定があります。 - 修繕履歴令和 1年8月 インターホン設備更新工事
平成28年 7月 大規模修繕工事
- フローリング新規貼替
- 壁・天井クロス新規貼替
- 建具・玄関収納等新規交換
- TOTO製洗面化粧台新規交換
- TOTO製洗浄便座付タンクレストイレ新規交換
- TOTO製追焚機能(循環式)付ユニットバス新規交換(浴室換気乾燥機付)
- 田中工藝製システムキッチン新規交換(食器洗い機付)
- 照明器具新規設置※2
- エアコン一基新規設置
- 床暖房マット新規交換…等
- ※2シーリングライトは、販売には含まれません
Google Maps Loading...
- 所在地 : 京都府京都市中京区富小路通御池下る松下町135-3
- 交通 : 地下鉄東西線『京都市役所前』駅徒歩2分
地下鉄烏丸線・東西線『烏丸御池』駅徒歩5分
自宅からバーチャル内覧会を開催中です。
オンラインで物件をご案内します。
オンラインで物件をご案内します。
お電話での問い合わせ(10:00-19:00)
京都市の物件
-
- サンマンションドゥーシェ室町冷泉町
4LDK+3WIC+SIC/ 141.55㎡/京都府京都市中京区室町通二条上る冷泉町58
- サンマンションドゥーシェ室町冷泉町
-
- イーグルコート京都河原町
3LDK/ 70.61㎡/京都府京都市下京区西木屋町通松原上る二丁目天満町266
- イーグルコート京都河原町
-
- アバンエスパス烏丸御池
4LDK+2WIC/ 129.15㎡/京都府京都市中京区両替町通二条下る金吹町476
- アバンエスパス烏丸御池
-
- メロディーハイム堺町
2LDK/ 63.30㎡/京都府京都市中京区堺町通姉小路下る大阪材木町691
- メロディーハイム堺町




































