ルネ千里中央 810号室|大阪府その他大阪
物件の価値を磨き上げた
リノベーション住宅
リノベーション住宅
ルネ千里中央 810号室
NEW
価格8,490万円
月額ローンのシミュレーション
- 緑に寄り添う北摂エリア 千里中央駅徒歩12分
- 8階部分四方角住戸 ルーフバルコニー58.81m²付
- 専有面積111.61m² トランクルーム付
- 所在地 : 大阪府豊中市新千里西町2-7-5
- 交通 : 北大阪急行線『千里中央』駅徒歩12分
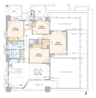
大阪モノレール本線『千里中央』駅徒歩14分 - 間取り : 4LDK+WIC
- 専有面積 : 111.61 ㎡
当物件を
スマホで
チェック!!
- 2駅利用可能
- CATV導入済み
- TVモニター付インターフォン
- オートロック
- トイレ新規交換
- トランクルーム
- ペット飼育可
- ルーフバルコニー
- 光ファイバー導入済
(共用部まで) - 公園至近
- 外観タイル貼
- 宅配ボックス
- 床暖房
- 浄水器
- 浴室換気乾燥機
- 眺望良好
- 緑多い住環境
- 角部屋
- 食器洗い機
- 駐車場
- 駐輪場
物件概要
リノベーション内容
- 構造鉄筋コンクリート造地下1階地上11階建8階部分
- 間取り4LDK+WIC
- 専有面積111.61㎡(壁芯)
- バルコニー面積12.95 ㎡
- 築年月2002(平成14)年2月
- 総戸数104戸
- 土地権利所有権
- 用途地域第一種中高層住居専用地域
- 現況空室
- 引渡日即可
- 駐車場空有(8,000円~17,000円/月)
- ペット飼育可(1住戸につき犬または猫のいずれか1匹、ペット飼育細則有)
- 事務所使用不可
- 管理費15,620円/月
- 修繕積立金31,250円/月
- 管理形態全部委託管理(日勤)
- 管理会社㈱長谷工コミュニティ
- 施工会社㈱熊谷組
- 旧分譲会社総合地所㈱
- 設備都市ガス・公営水道・本下水・EV・オートロック・宅配ボックス
- 備考駐輪場:空有(100~200円/月)
バイク置場:空有(2,000円/月) ・ CATV(J:COM)
インターネット(つなぐネットコミュニケーションズ)
修繕積立金総額:98,763,036円(R7年3月現在)
固定資産税・都市計画税:199,527円(R7年度概算)
トランクルーム面積 : 0.48m²(専有面積に含む)
ルーフバルコニー面積 : 58.81m²
そ の 他 : 1,000円/月(ルーフバルコニー使用料) - 修繕履歴令和 5年 9月 1階廊下埋設配管改修工事
令和 3年 6月 ウッドデッキ改修工事
平成27年 7月 大規模修繕工事
- フローリング新規貼替
- 壁・天井クロス新規貼替
- 建具・玄関収納等新規交換
- LIXIL製洗面化粧台新規交換
- TOTO製洗浄便座付トイレ新規交換
- TOTO製追焚機能(循環式)付ユニットバス新規交換(浴室換気乾燥機付)
- 田中工藝製システムキッチン新規交換(食器洗い機付)
- エアコン一基新規設置
- 床暖房マット新規交換
- ディスポーザー新規交換
- 照明器具新規設置※1
- 給湯器新規交換※2…等
- ※1シーリングライトは、販売には含まれません
- ※2給湯器の新規交換は設備の納品後になります
Google Maps Loading...
- 所在地 : 大阪府豊中市新千里西町2-7-5
- 交通 : 北大阪急行線『千里中央』駅徒歩12分
大阪モノレール本線『千里中央』駅徒歩14分
自宅からバーチャル内覧会を開催中です。
オンラインで物件をご案内します。
オンラインで物件をご案内します。
お電話での問い合わせ(10:00-19:00)












