運命のリノベーション
物件と出会える場所
物件と出会える場所
[過去取扱物件]
総戸数182戸 大規模コミュニティ
- 所在地 : 兵庫県西宮市
- 交通 : 阪急神戸線『西宮北口』駅徒歩6分
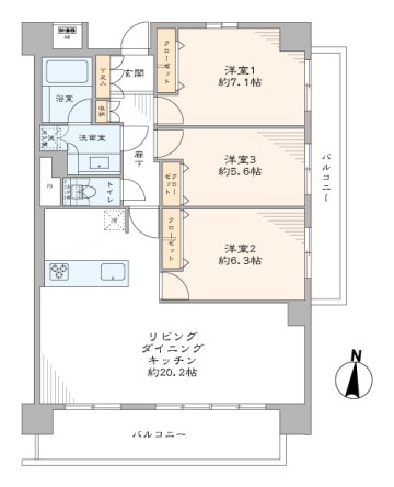
- 間取り : 3LDK
- 専有面積 : 82.54 ㎡
- CATV導入済み
- TVモニター付インターフォン
- オートロック
- トイレ新規交換
- 両面バルコニー
- 光ファイバー導入済
(共用部まで) - 外観タイル貼
- 宅配ボックス
- 浄水器
- 浴室換気乾燥機
- 角部屋
- 買物便利
- 食器洗い機
- 駐車場
- 駐輪場
物件概要
リノベーション内容
- 構造鉄骨鉄筋コンクリート造地下1階地上13階建2階部分
- 間取り3LDK
- 専有面積82.54㎡(壁芯)
- バルコニー面積18.50 ㎡
- 土地権利所有権
- 用途地域第一種中高層住居専用地域
- 駐車場空有(10,000~15,000円/月)
- ペット飼育不可
- 事務所使用不可
- フローリング新規貼替
- 給水管・給湯管新規交換(専有部)
- 建具・玄関収納等新規交換
- LIXIL製洗面化粧台新規交換
- TOTO製洗浄便座付トイレ新規交換
- TOTO製高温差湯式ユニットバス新規交換(浴室換気乾燥機付)
- 壁・天井クロス新規貼替
- 照明器具新規設置※1
- エアコン一基新規設置
- LIXIL製システムキッチン新規交換(食器洗浄乾燥機付)…等
- ※1シーリングライトは、販売には含まれません




































