運命のリノベーション
物件と出会える場所
物件と出会える場所
[過去取扱物件]
『江坂』駅徒歩3分の駅近立地
- 所在地 : 大阪府吹田市
- 交通 : OsakaMetro御堂筋線『江坂』駅徒歩3分
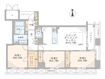
北大阪急行線『江坂』駅徒歩3分 - 間取り : 3LDK+WIC
- 専有面積 : 73.16 ㎡
- 2駅利用可能
- CATV導入済み
- TVモニター付インターフォン
- オートロック
- トイレ新規交換
- トランクルーム
- 光ファイバー導入済
(共用部まで) - 外観タイル貼
- 宅配ボックス
- 床暖房
- 浄水器
- 浴室換気乾燥機
- 眺望良好
- 角部屋
- 買物便利
- 食器洗い機
- 駅近
- 駐車場
- 駐輪場
物件概要
リノベーション内容
- 構造鉄骨鉄筋コンクリート造地上14階建12階部分
- 間取り3LDK+WIC
- 専有面積73.16㎡(壁芯)
- バルコニー面積7.66 ㎡
- 土地権利所有権
- 用途地域商業地域
- 駐車場空有(12,500円~17,000円/月)
- ペット飼育不可
- 事務所使用不可
- フローリング新規貼替
- 壁・天井クロス新規貼替
- 建具・玄関収納等新規交換
- LIXIL製洗面化粧台新規交換
- TOTO製洗浄便座付トイレ新規交換
- TOTO製高温差湯式ユニットバス新規交換(浴室換気乾燥機付)
- 照明器具新規設置※1
- エアコン一基新規設置
- 床暖房マット新規設置
- LIXIL製システムキッチン新規交換(食器洗浄機付)…等
- ※1シーリングライトは、販売には含まれません




































